£475,000 Offers in excess of

4 bedroom House For Sale

London Row, Arlesey, Bedfordshire
  • 4 Beds
  • 2 Baths
  • 2 Reception

Key Details

Material Information

Property Description

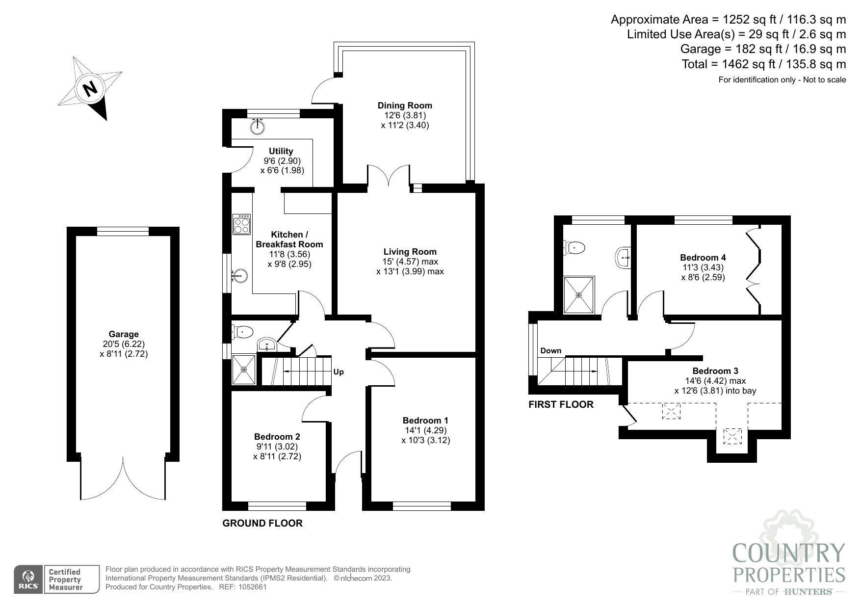
This spacious 4 bedroom chalet style bungalow is offered in superb condition throughout and is set at the end of a no through road with approx.100ft private enclosed south facing rear garden.

Ground Floor

Entrance

Under storm porch via wood part glazed door into:

Entrance Hall

Stairs rising to first floor. Oak flooring. Radiator. Doors to all rooms.

Bedroom 1

4.29m x 3.12m (14' 1" x 10' 3") <br />Radiator. Double glazed window to front.

Bedroom 2

3.02m x 2.27m (9' 11" x 7' 5") <br />Radiator. Double glazed window to front.

Kitchen Breakfast Room

3.56m x 2.95m (11' 8" x 9' 8") <br />Fitted with a range of eye and base level units with granite worksurfaces and tiled splashbacks. Built in electric oven, four burner gas hob and extractor hood over. Integrated appliances including fridge, freezer and dishwasher. Inset one & half bowl sink with drainer and mixer tap. Tiled floor. Radiator. Double glazed window to side. Opening to:

Utility Room

2.90m x 1.98m (9' 6" x 6' 6") <br />A range of fitted base and wall mounted units with granite worksurfaces and tiled splashbacks. Space and plumbing for washing machine. Space for tumble dryer. Stainless steel sink with drainer. Tiled floor. Wall mounted combination boiler. Double glazed window to rear. Part glazed door to side access.

Lounge

4.55m x 3.89m (max) (14' 11" x 12' 9") <br />Two radiators. Double glazed French doors opening into:

Dining Room

3.81m x 3.40m (12' 6" x 11' 2") <br />Double glazed construction on solid base with tiled roof and door opening into rear garden. Wall lights. Wood effect flooring.

Shower Room

Fully tiled room with white suite comprising low level flush WC, wash hand basin with mixer tap and walk in shower cubicle. Wall mounted heated towel rail. Extractor fan. Tiled floor. Inset ceiling spotlights and extractor. Obscure double glazed window to side.

First Floor

Landing

Obscure double glazed window to side. Doors to all rooms.

Bedroom 3

4.42m x 3.81m (in to bay) (14' 6" x 12' 6") <br />Two double glazed Velux windows to front. Radiator. Access to eaves storage. Wall mounted air conditioning unit providing both heating and cooling.<br />

Bedroom 4

3.43m x 2.59m (11' 3" x 8' 6") <br />Radiator. Built-in storage. Wall mounted air conditioning unit providing both cooling and heating. Double glazed window to rear.

Bathroom

Bathroom comprising hidden cistern WC, vanity wash hand basin and large walk in shower cubicle. Wall mounted heated towel rail. Tiled floor. Extractor fan. Shaver point. Obscure double glazed window to rear.

Outside

Front Garden

Block paved driveway, enclosed by brick wall, providing parking for several vehicles, leading to:

Garage

Timber double doors. Power and light. Personal door to rear.

Rear Garden

Approximately 100ft<br />South facing garden, laid mainly to lawn with large decked area. Enclosed by wooden panel fencing. Gated access to front.


London Row, Arlesey, Bedfordshire

Mortgage calculator
years
%
Calculate Your Stamp Duty
£
Results
Stamp Duty To Pay:
Effective Rate:
Tax Band % Taxable Sum Tax
Enquire Now
01462 834022 Viewing Request Request Details Book a valuation

Share This Property

Country Properties Stotfold

1 Arlesey Road, Stotfold, Bedfordshire, SG5 4HA