£300,000 Offers in excess of

2 bedroom House Sold STC

Olympus Road, Henlow, Bedfordshire
  • 2 Beds
  • 1 Baths
  • 1 Reception

Key Details

Material Information

Property Description

This two double bedroom mid terrace home offering spacious accomodation throughout, off road parking for 2 cars. and is offered with NO UPWARD CHAIN. The property is a short drive to the nearby market town of Hitchin, its amenities and direct rail links into London.

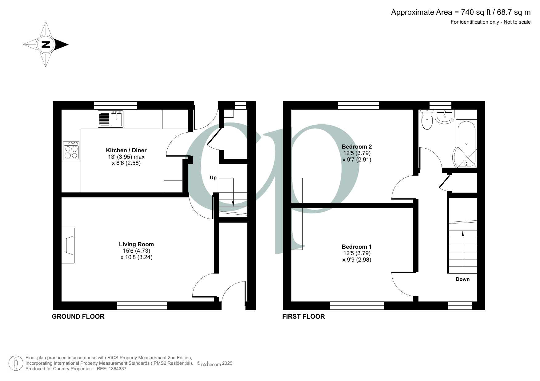
Ground Floor

Entrance Hall

Understair storage cupboard. Door to living room

Living Room

15' 6" x 10' 8" (4.72m x 3.25m) Double glazed window to front. Radiator. Door into:

Inner Lobby

Stairs rising to first floor. Opening into storage cupboard. Radiator. Part glazed door to rear garden. Door into Kitchen

Kitchen/Diner

13' 0" x 8' 6" (3.96m x 2.59m) A range of wall and base units with complementary worksurfaces over, tiled splash back. Inset stainless steel sink with drainer and mixer tap over. Electric oven with four ring gas hob with glass splash back and integrated extractor. Space for fridge freezer. Integrated dishwasher. Integral washing machine. Radiator. Wall mounted gas boiler enclosed in cupboard. Double glazed window to rear.

First Floor

Landing

Airing cupboard. Access to boarded loft space fitted with light & ladder. Double glazed window to rear. Radiator. Doors to all rooms

Bedroom 1

12' 5" x 9' 9" (3.78m x 2.97m) Double glazed window to front aspect. Radiator.

Bedroom 2

12' 5" x 9' 7" (3.78m x 2.92m) Double glazed window to rear aspect. Radiator.

Bathroom

Obscure double glazed window to rear aspect. Three piece suite comprising panel enclosed 'P' shaped bath with mains shower and curved glass side screen, pedestal mounted wash hand basin and low level flush WC. Partially tiled walls. Extractor fan. Chrome heated towel rail.

Outside

Front Garden

Block paved driveway providing off road parking for 2 cars and pathway leading to front door with slate border. Outside light.

Rear Garden

Mainly laid to lawn with pathway leading to gated access onto communal grassland. Cold water tap.

Agents Note

The owner informs us there is a service charge of approx £87 per month payable to Preim includes water & sewage charges and the upkeep of communal areas and the private road. We suggest any buyer confirms this with their legal representative prior to exchange of contracts.<br /><br />For all your mortgage needs contact Dawn Olney at Mortgage Vision on 01462 811822 or email: enquiries @mortgagevision.co.uk<br /><br />PRELIMINARY DETAILS - NOT YET APPROVED AND MAY BE SUBJECT TO CHANGES<br /><br />


Olympus Road, Henlow, Bedfordshire

Mortgage calculator
years
%
Calculate Your Stamp Duty
£
Results
Stamp Duty To Pay:
Effective Rate:
Tax Band % Taxable Sum Tax
Enquire Now
01462 811822 Viewing Request Request Details Book a valuation

Share This Property

Country Properties Shefford

46-48 High Street, Shefford, Bedfordshire, SG17 5DG