£1,000,000 Guide Price

4 bedroom House Sold STC

Willian Road, Hitchin, Hertfordshire
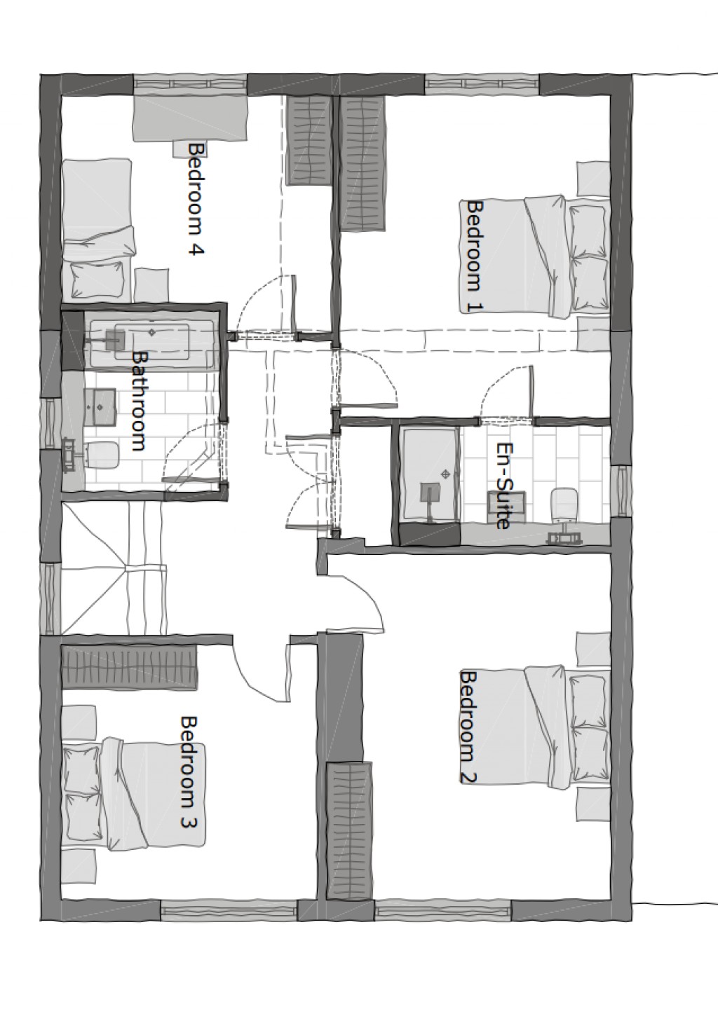
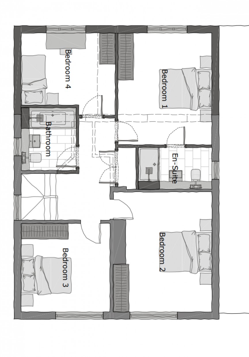
  • 4 Beds
  • 2 Baths
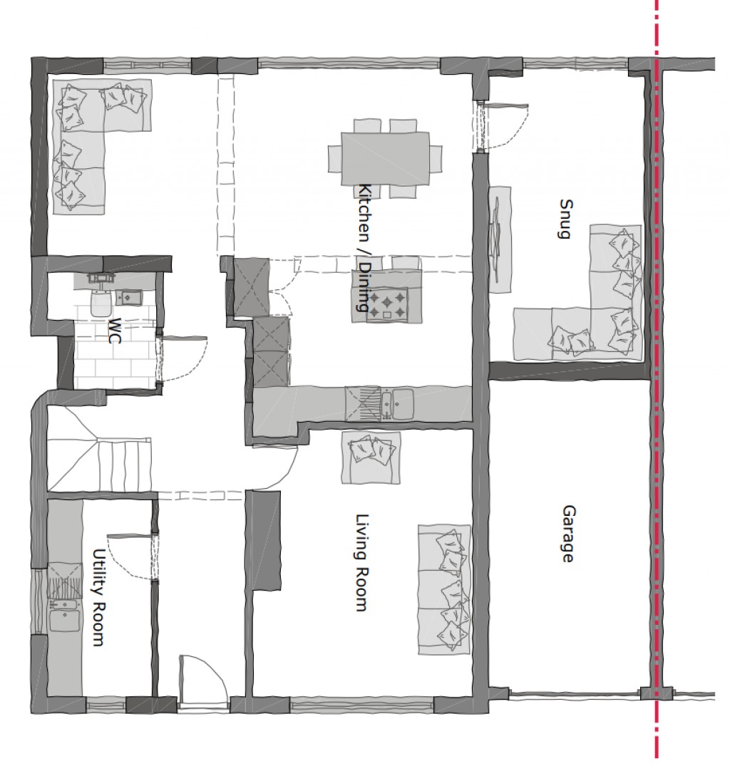
  • 3 Reception

Key Details

Material Information

Property Description

*** COMING SOON ***

A beautifully refurbished four bedroom detached family home, set along one of East Hitchin’s most desirable tree-lined roads.

This impressive home offers approx. 1,815 sq ft of stylish, thoughtfully updated living space. With two receptions rooms, a kitchen/dining/family room and West facing garden this home is perfect for buyers looking for a move-in-ready home in a prime location.

The complete refurbishment includes new windows, electrics, heating system and décor from top to bottom. Brand new bathroom suites, to both the main bathroom and ensuite, finished with a fresh, contemporary look. A fully fitted, handleless kitchen with sleek quartz worktops and integrated appliances including an oven, fridge/freezer, dishwasher and induction hob. A separate utility room with dedicated space for a washing machine and tumble dryer – ideal for busy family life. Gas fired central heating for efficient, reliable warmth. New flooring throughout, with durable vinyl in the principal areas and soft carpet in the living room and bedrooms.

This is a rare opportunity to secure a high quality finish family home on one of Hitchin’s most sought after residential roads, beautifully updated and ready for its next chapter.

Hitchin is a charming medieval market town and has many fine Tudor and Georgian buildings, particularly around the market square. Near to the market square stands the large medieval parish church of St Mary. The town provides good shopping as well as a swimming pool, football team, two theatres, a wide variety of restaurants and pubs and highly regarded girls and boys schools. There is also a mainline railway station providing direct access to Kings Cross and Cambridge.


Willian Road, Hitchin, Hertfordshire

Mortgage calculator
years
%
Calculate Your Stamp Duty
£
Results
Stamp Duty To Pay:
Effective Rate:
Tax Band % Taxable Sum Tax
Enquire Now
01462 452951 Viewing Request Request Details Book a valuation

Share This Property

Country Properties Hitchin

6 Brand Street, Hitchin, SG5 1HX