£850,000

4 bedroom House Sold STC

Wilbury Road, Letchworth Garden City, Hertfordshire
  • 4 Beds
  • 2 Baths
  • 2 Reception

Key Details

Material Information

Property Description

An impressive four bedroom detached family home located on the very edge of Town overlooking open countryside. The house is one of only two individual detached homes both sitting on large plots.

On the ground floor is a spacious dual aspect lounge, dining room and fitted kitchen/breakfast room, utility room, ground floor cloakroom, and storeroom/study. Upstairs are the main bedroom which overlooks the rear garden, a luxury en-suite shower room, three further bedrooms and a modern family bathroom. The property also benefits from gas to radiator central heating and double-glazed windows. Outside, the detached nature of the house offers privacy and potential for outdoor activities or garden projects. Its location provides easy access to local amenities, schools, and transport links, making daily life convenient and enjoyable for the whole family.

The current owners of 5 Wilbury Road are the second family to live there since new. Over the years they have lovingly restored and modernised the property to an extremely high standard. Internal viewing comes highly recommended to appreciate this quality family home.

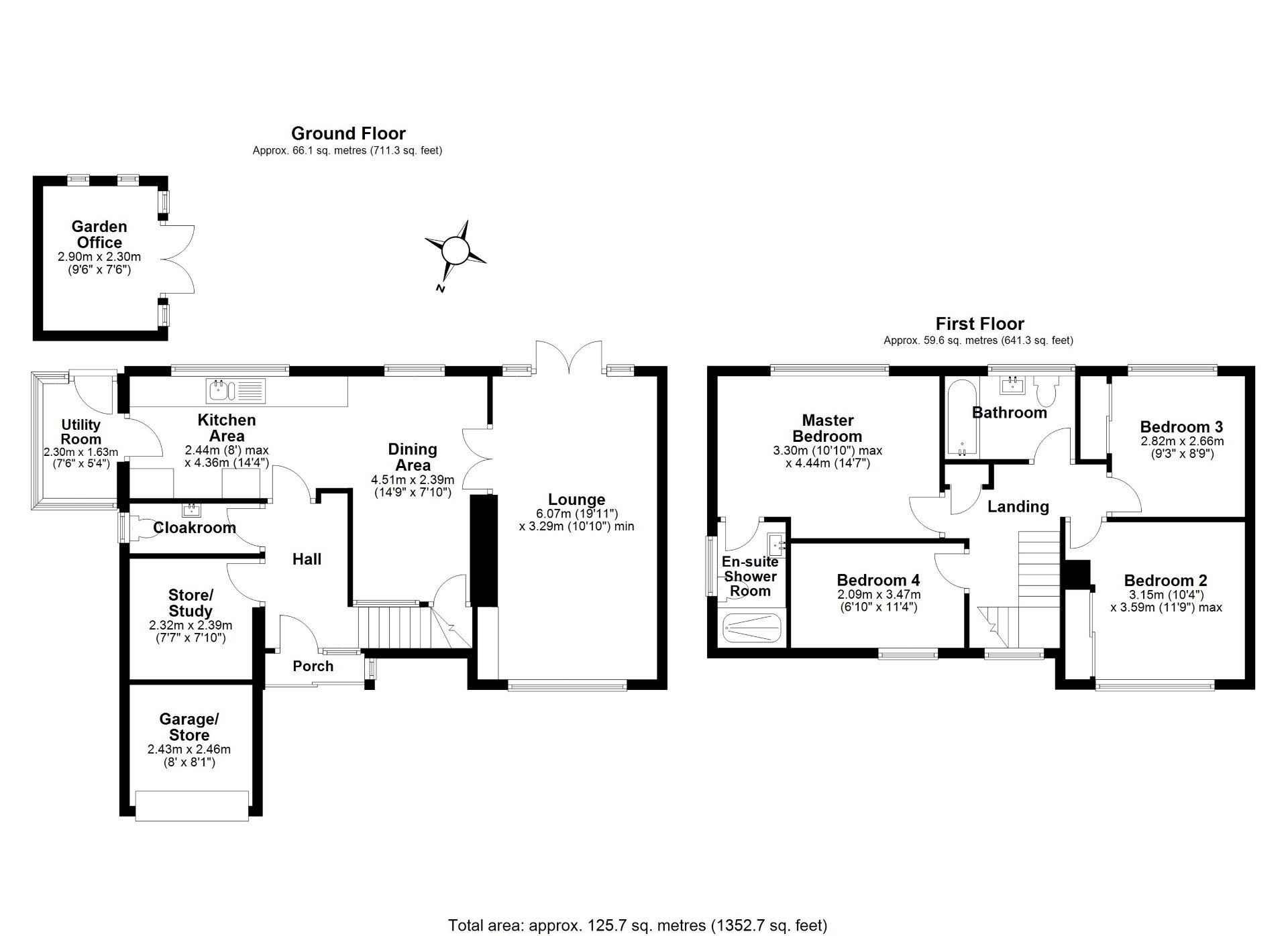
Ground Floor

Entrance Hall

Stairs to the first floor. Parquet flooring.

Cloakroom

Modern suite with a low level wc and a wash basin with cupboard. Tile floor. Double glazed window to the side aspect.

Store Room/Study

7' 10" x 7' 7" (2.39m x 2.31m) <br />A really handy storage area which was converted from the back half of the original garage. This room could easily be used a study/home office.

Kitchen Area

14' 4" x 8' 0" (4.37m x 2.44m) <br />Fitted in a range of matching base and eye level units with contrasting granite work surfaces. Twin bowl sink unit with mixer taps. Integrated fridge/freezer, dishwasher and microwave. Breakfast bar. Tiled floor. Double glazed window to the rear aspect. Door leading to the Utility area.

Utility

7' 6" x 5' 4" (2.29m x 1.63m) <br />Plumbing for washing machine and tumble dryer. Double glazed windows to all aspects. Door to the garden.

Dining Area

14' 9" x 7' 10" (4.50m x 2.39m) <br />Open through from the kitchen. Double glazed window to the rear aspect. Parquet flooring. Double doors leading to the lounge. Radiator. Understairs cupboard.

Lounge

19' 11" x 10' 10" (6.07m x 3.30m) <br />Dual aspect with double glazed windows to the front and double glazed French doors overlooking the rear garden. Parquet flooring. Solid fuel burner. Radiators. Tv point. Built in dresser with glazed doors.

First Floor

Landing

Double glazed window to the front aspect. Doors to all rooms. Linen cupboard.

Bedroom One

14' 7" x 10' 10" (4.45m x 3.30m) <br />Double glazed window overlooking the rear garden. Radiator.

En-Suite Shower Room

A luxury fitted en-suite with low level wc, wash basin and a large walk i, wet room style shower with glass screen. Tiled floor and walls. Heated chrome towel rail. Double glazed window to the side aspect.

Bedroom Two

11' 9" x 10' 4" (3.58m x 3.15m) <br />Double glazed window to the front aspect. Radiator. Fitted wardrobes.

Bedroom Three

9' 3" x 8' 9" (2.82m x 2.67m) <br />Double glazed window to the rear aspect. Radiator. Fitted wardrobes.

Bedroom Four

11' 4" x 6' 10" (3.45m x 2.08m) <br />Double glazed window to the front aspect. Radiator.

Family Bathroom

Modern suite comprising a low level wc, wash basin with vanity unit below and panelled bath with shower and glass screen. Tiled floor and walls. Double glazed window to the rear aspect.

Outside

Front Garden

Block paved driveway providing off road parking for a number of vehicles. The remainder is laid to lawn with hedge borders. Gated access to the rear garden.

Rear Garden

A real feature of the property is the 115ft approx. rear garden. Adjacent to the rear of the house is a large patio are with steps down. The remainder is laid mainly to lawn with fruit trees, shrub beds and borders. At the bottom of the garden there is a timber shed and greenhouse both screened with trellis fencing. The garden also houses a large timber Garden Office (9'6 x 7'6).

Garage/Store

8' 1" x 8' 0" (2.46m x 2.44m) <br />With an electronic roll up door. Now half a garage ideal for storing bikes, tools etc.

Agents Note

The property is Freehold.


Wilbury Road, Letchworth Garden City, Hertfordshire

Mortgage calculator
years
%
Calculate Your Stamp Duty
£
Results
Stamp Duty To Pay:
Effective Rate:
Tax Band % Taxable Sum Tax
Enquire Now
01462 481100 Viewing Request Request Details Book a valuation

Share This Property

Country Properties Letchworth Garden City

7 Howard Park Corner, Letchworth Garden City, Hertfordshire, SG6 1PQ