£400,000 Guide Price

4 bedroom House Sold STC

Ampthill, Bedfordshire
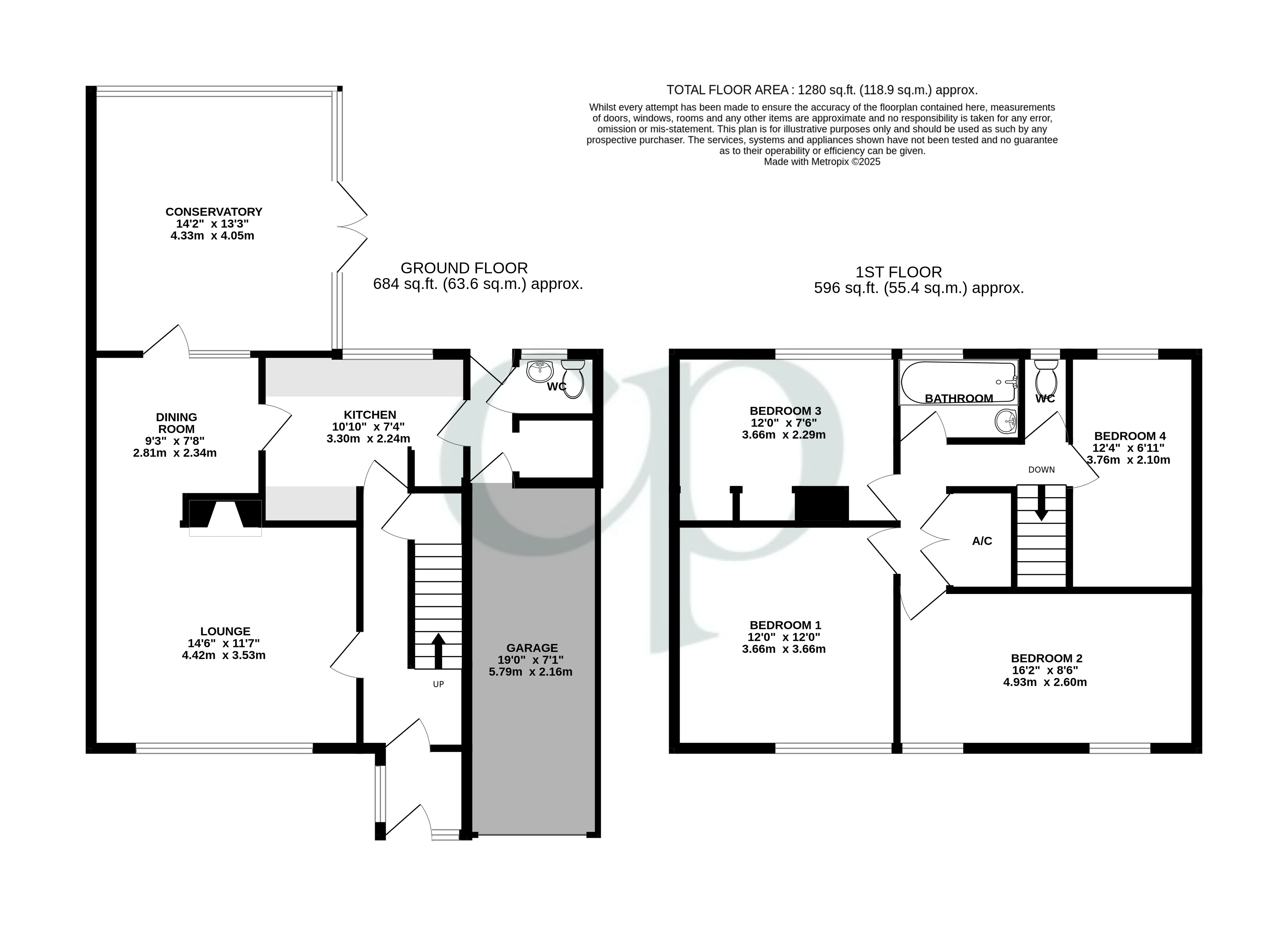
  • 4 Beds
  • 1 Baths
  • 2 Reception

Key Details

Material Information

Property Description

An amazing opportunity to modernise this four bedroom semi-detached property on the highly desirable Holland Road, to create your ideal family home!


Ampthill, Bedfordshire

Mortgage calculator
years
%
Calculate Your Stamp Duty
£
Results
Stamp Duty To Pay:
Effective Rate:
Tax Band % Taxable Sum Tax
Enquire Now
01525 403033 Viewing Request Request Details Book a valuation

Share This Property

Country Properties Ampthill

1 Church Street, Ampthill, Bedfordshire, MK45 2PJ