£400,000 Guide Price

3 bedroom House For Sale

Thurnall Close, Baldock, Hertfordshire
  • 3 Beds
  • 2 Baths
  • 2 Reception

Key Details

Material Information

Property Description

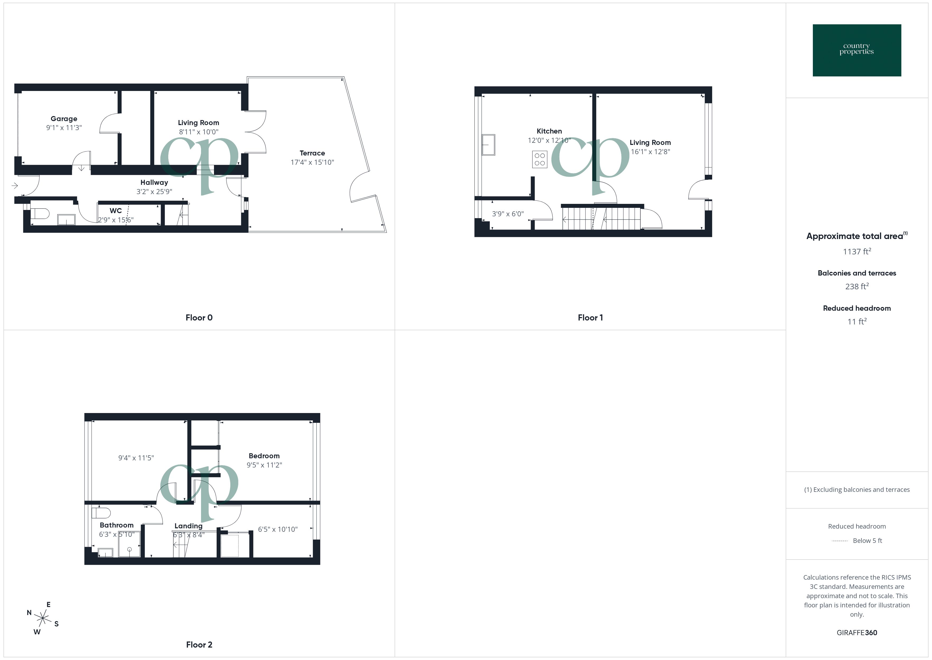
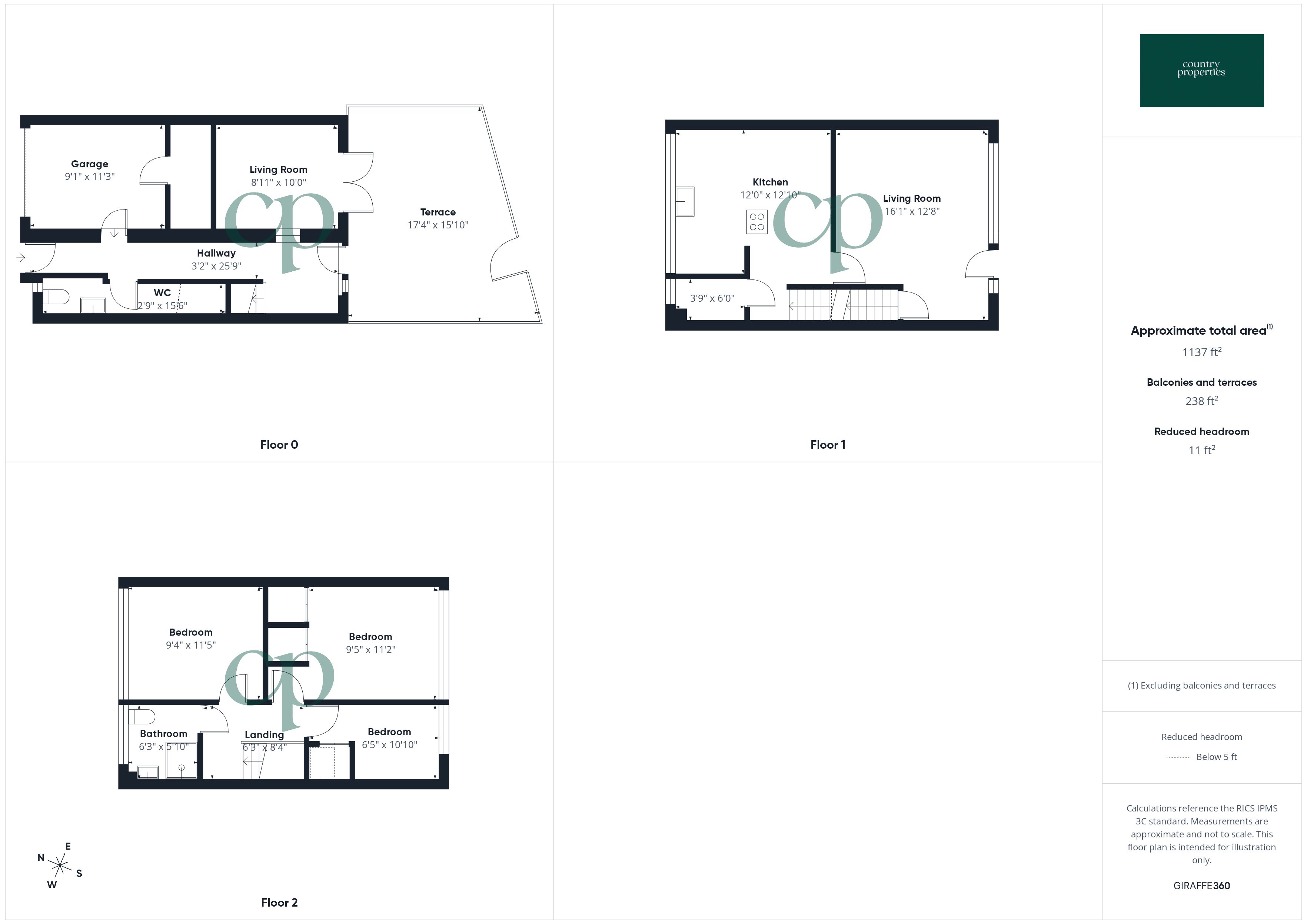
A particularly light and spacious three-bedroom mid-terrace townhouse, ideally located within Thurnall Close in central Baldock, just a very short walk from the town centre, local schools and mainline station. Offered to the market chain free, this superb home is move-in ready yet would benefit from some light cosmetic work, presenting an excellent opportunity to tailor it to the new owners liking.

The accommodation is arranged over three floors and offers generous room sizes throughout. The ground floor comprises an entrance porch leading into a spacious hallway with access to a cloak room and and under-stairs storage, the garage and store cupboard and a versatile study/garden room. This additional reception space features French doors onto the rear garden and internal access could be restored should the new owner desire, making it ideal for home working, hobbies or potential reconfiguration.

On the first floor, there is a well-proportioned kitchen with a well designed breakfast bar, large windows to the front aspect with a range of base units, integrated appliances including: oven, microwave , induction hob, double fridge freezer and a separate utility room offers space for a washer and dryer  To the rear, a bright and spacious lounge / diner enjoys two large windows and a door leading to the Juliet balcony overlooking the garden and the playing fields.

The second floor provides three good-sized bedrooms, including two generous doubles, one with built-in wardrobes, and a third single bedroom. The family bathroom is fitted with walk in shower a WC and wash hand basin. Externally, the property benefits from an attractive rear courtyard garden comprising a patio seating area and gated rear access. To the front, there is allocated parking for 2 leading to an integral garage with up-and-over door which is also directly accessible from the property.

With its central location, spacious layout and clear potential for further enhancement, this excellent home must be viewed in person to fully appreciate the light and space on offer.

Location

Baldock is a historic market town located within Hertfordshire County which benefits from having a main line railway station with connecting links to London and Cambridge. The town centre has lots to offer with local amenities such as high street shops, popular public houses, restaurants, local butchers, and cafes. Baldock is very popular for commuters as it is directly situated on the A1 and has good links onto the A505 and A10. This property is well located within Baldock being a very short walking distance away from the sought after Knights Templar Secondary School.

(All purchasers must complete an AML and financial sanctions check once a sale is agreed (subject to contract). The check is carried out by our third-party provider at a cost of £60 including VAT per property, payable by the applicant(s).)


Thurnall Close, Baldock, Hertfordshire

Mortgage calculator
years
%
Calculate Your Stamp Duty
£
Results
Stamp Duty To Pay:
Effective Rate:
Tax Band % Taxable Sum Tax
Enquire Now
Viewing Request Request Details Book a valuation

Share This Property

Country Properties Baldock & Ashwell

39 High Street, Baldock, Herts, SG7 6BG