£500,000 Offers in excess of

3 bedroom House For Sale

Icknield Way, Baldock, Hertfordshire
  • 3 Beds
  • 1 Baths
  • 2 Reception

Key Details

Material Information

Property Description

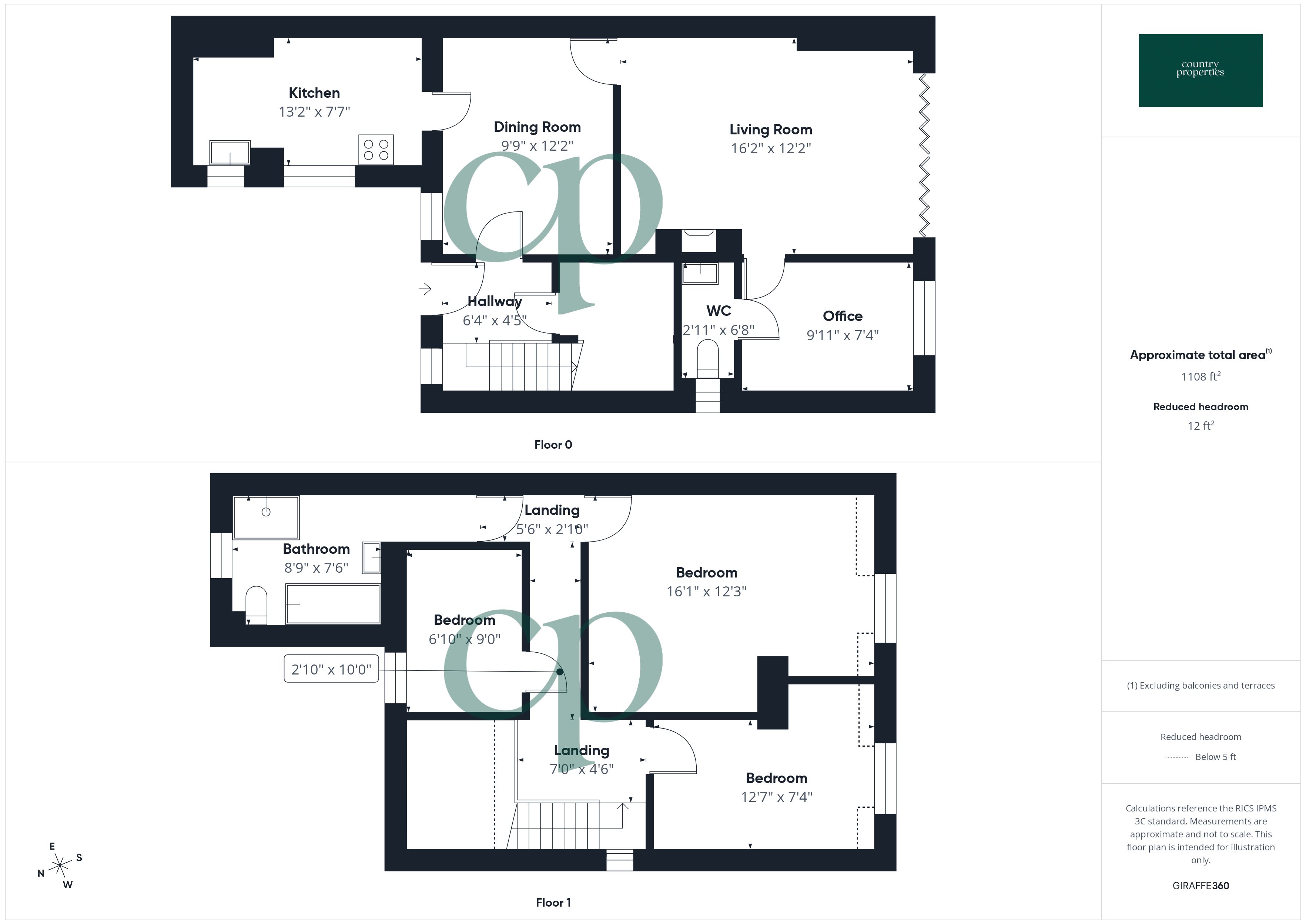
Perfectly situated on Icknield Way in the charming market town of Baldock, this generously proportioned home offers approximately 1,108 sq. ft. of well-planned accommodation arranged over two floors.

The property provides versatile living space, including three bedrooms, a family bathroom, two reception rooms, a home office and a ground floor WC, making it ideal for modern family life.

On the ground floor, a welcoming entrance hall leads through to a useful store/utility room, a spacious dining room ideal for entertaining, and a modern fitted kitchen with ample storage and work surfaces. The living room is a standout feature, offering a comfortable and stylish space complete with a log burner and bi-fold doors opening onto the garden, creating a seamless indoor-outdoor flow. A separate home office provides the perfect space for remote working.

Upstairs, the first floor hosts three well-proportioned bedrooms, including a particularly generous principal bedroom fitted with built-in wardrobes to three sides, offering excellent storage. The accommodation is completed by a contemporary family bathroom, fitted with both a bath and separate shower to suit a range of needs.

Externally, the property continues to impress with a private rear garden of a good size, thoughtfully arranged to suit both relaxation and entertaining. A stunning decked seating area with pergola provides an ideal space for outdoor dining, complemented by a lawn area and mature planted borders. To the rear of the garden, a sizeable studio offers excellent versatility, perfect for use as a workshop, craft room or additional home office.  The front the property also offers off street parking.

This well-maintained and thoughtfully arranged home combines practical living with stylish features, offering a fantastic opportunity for buyers seeking space, flexibility and a convenient location.

Location 

Baldock is a historic market town located within Hertfordshire County which benefits from having a main line railway station with connecting links to London and Cambridge. The town centre has lots to offer with local amenities such as high street shops, popular public houses, restaurants, local butchers, and cafes. Baldock is very popular for commuters as it is directly situated on the A1 and has good links onto the A505 and A10. This property is well located within Baldock being a very short walking distance away from the sought after Knights Templar Secondary School.

(All purchasers must complete an AML and financial sanctions check once a sale is agreed (subject to contract). The check is carried out by our third-party provider at a cost of £60 including VAT per property, payable by the applicant(s).)


Icknield Way, Baldock, Hertfordshire

Mortgage calculator
years
%
Calculate Your Stamp Duty
£
Results
Stamp Duty To Pay:
Effective Rate:
Tax Band % Taxable Sum Tax
Enquire Now
Viewing Request Request Details Book a valuation

Share This Property

Country Properties Baldock & Ashwell

39 High Street, Baldock, Herts, SG7 6BG