£350,000

3 bedroom House Sold STC

Hinksley Road, Flitwick, Bedfordshire
  • 3 Beds
  • 1 Baths
  • 1 Reception

Key Details

Material Information

Property Description

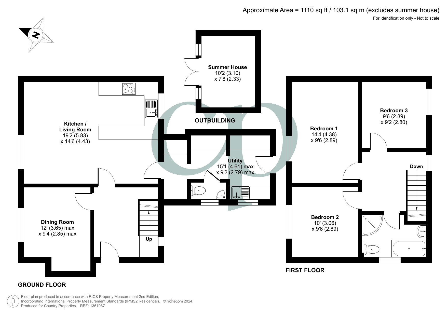
This chain-free end of terrace home features a generous rear garden with southerly aspect, plus off road parking to front. With well-proportioned accommodation throughout, the property is entered via a spacious hallway leading to both a contemporary open plan living space incorporating a fitted kitchen with a range of integrated appliances (as stated) plus breakfast bar area for informal dining, along with a versatile separate reception room. There is a useful utility complete with integrated fridge and freezer, plus a cloakroom/WC. All three of the bedrooms are doubles, and the first floor bathroom includes a four piece suite with bath and separate shower cubicle. The mainline rail station (providing a direct service to St Pancras International) and further town centre amenities are within 0.6 miles, whilst a handy parade of shops are located on neighbouring Brookes Road. EPC Rating: D.

GROUND FLOOR

ENTRANCE HALL

Accessed via open porch and wooden entrance door to side. Double glazed window to rear aspect. Stairs to first floor landing. Radiator. Wood effect flooring. Doors to open plan kitchen/living room and to:

DINING ROOM

Double glazed window to front aspect. Radiator. Wood effect flooring. Wall mounted fuse box.

OPEN PLAN KITCHEN/LIVING ROOM

Dual aspect via double glazed windows to front and rear. A range of base and wall mounted kitchen units with work surface areas incorporating sink with mixer tap, extending to create a peninsula breakfast bar. Built-in oven and hob with extractor over. Integrated dishwasher and refrigerator. Two radiators. Recessed spotlighting to ceiling. Part tiled/part wood effect flooring. Part opaque glazed door to:

UTILITY ROOM

Opaque double glazed window to side aspect. Opaque double glazed door to rear aspect. A range of base and wall mounted units with work surface areas incorporating sink with mixer tap. Integrated fridge and separate freezer. Space for washing machine and tumble dryer. Cupboard housing gas fired boiler. Tile effect flooring. Door to:

CLOAKROOM/WC

Opaque double glazed window to side aspect. Two piece suite comprising: Close coupled WC and corner wash hand basin with mixer tap. Wall tiling. Tile effect flooring.

FIRST FLOOR

LANDING

Double glazed window to rear aspect. Radiator. Hatch to loft. Doors to all bedrooms and family bathroom.

BEDROOM 1

Double glazed window to front aspect. Radiator.

BEDROOM 2

Double glazed window to front aspect. Radiator.

BEDROOM 3

Double glazed window to rear aspect. Radiator.

FAMILY BATHROOM

Opaque double glazed window to side aspect. Four piece suite comprising: Bath with mixer tap/shower attachment, shower cubicle with wall mounted shower unit, WC with concealed cistern and pedestal wash hand basin. Heated towel rail. Wall and floor tiling. Recessed spotlighting to ceiling.

OUTSIDE

REAR GARDEN

Immediately to the rear of the property is a generous paved patio seating area leading to lawn. Outside lighting and cold water tap. Summer house/store with double doors and windows to front aspect. Enclosed by fencing with gated side access.

OFF ROAD PARKING

Gravelled frontage providing off road parking. Pathway leading to side entrance door. Gated access to rear garden.<br /><br />Current Council Tax Band: B.


Hinksley Road, Flitwick, Bedfordshire

Mortgage calculator
years
%
Calculate Your Stamp Duty
£
Results
Stamp Duty To Pay:
Effective Rate:
Tax Band % Taxable Sum Tax
Enquire Now
01525 721000 Viewing Request Request Details Book a valuation

Share This Property

Country Properties Flitwick

3 The Russell Centre, Coniston Road, Flitwick, Beds, MK45 1QY.