£450,000

3 bedroom House Sold STC

High Street, Arlesey, Bedfordshire
  • 3 Beds
  • 1 Baths
  • 2 Reception

Key Details

Material Information

Property Description

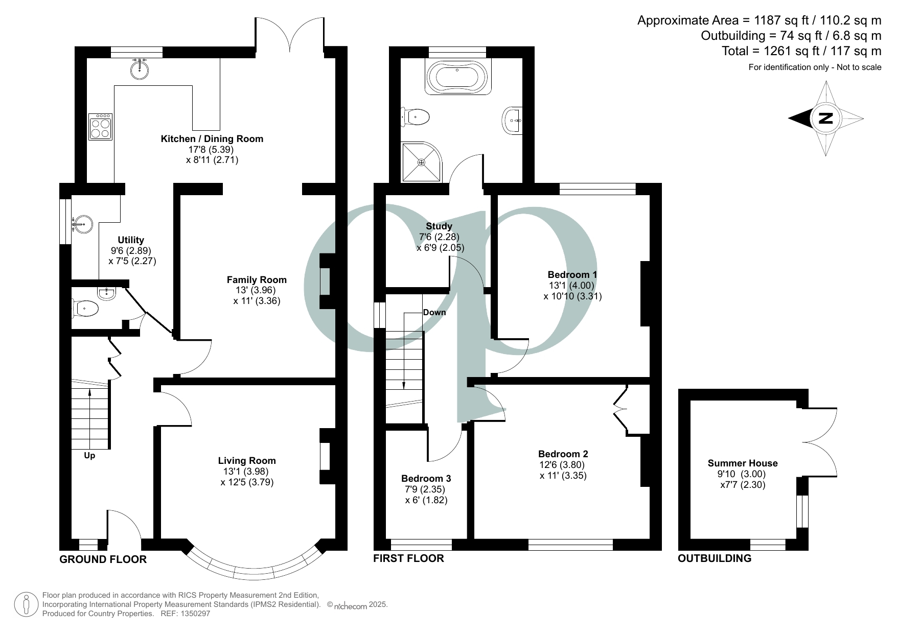
This tastefully updated and extended three-bedroom semi-detached home offers spacious, modern living throughout. Enjoying a desirable south-east facing aspect generous 150ft (approx.) rear garden and a driveway with parking for up to three cars. Internally, the home features a bright and contemporary kitchen/diner, two reception rooms with log burners, a utility room and WC. Upstairs, you'll find three well-proportioned bedrooms, a separate office and a stylish four-piece family bathroom.

Ground Floor

Entrance Hall

Carpeted stairs rising to first floor. Herringbone style vinyl flooring. Bespoke understairs storage. Storage cupboard. Radiator. Doors to Living Room, Dining Room, Utility through to the Kitchen and Cloakroom.

Living Room

13' 1" x 12' 5" (3.98m x 3.79m) Bay window to front aspect with fitted shutters to remain. Fitted carpet. Feature log burner. Radiator.

Family Room

13' 0" x 11' 0" (3.96m x 3.36m) Herringbone style vinyl flooring. Feature fireplace with a log burner. Radiator.

Kitchen/ Dining Room

17' 8" x 8' 11" (5.39m x 2.71m) A range of wall and base units with worksurfaces over. Ceramic butler sink with stainless steal mixer tap over. Integrated slide and hide oven and induction AEG hob with extractor fan over. Breakfast bar. Integrated dishwasher. Space for fridge/freezer. Herringbone style vinyl flooring. Radiator. Window to rear and patio double doors onto rear garden. Velux window in dining area. Archway to Family Room.

Utility

9' 6" x 7' 5" (2.89m x 2.27m) Range of wall and base units with worksurfaces over and inset stainless steel sink with mixer tap over. Cupboard housing a combination boiler (new in 2018). Space for washing machine and tumble dryer. Part tiled walls. Herringbone style vinyl flooring. Radiator. Window to side aspect. Archway onto Kitchen/Diner.

Cloakroom

Vanity wash hand basin and WC. Herringbone style vinyl flooring.

First Floor

Landing

Double glazed window to side aspect with fitted shutters to remain. Doors to all bedrooms and bathroom. Access to loft space.

Bedroom One

13' 1" x 10' 10" (4.00m x 3.31m) Master bedroom with double glazed window to rear aspect. Fitted carpet. Wardrobes subject to separate negotiation. Radiator.

Bedroom Two

12' 6" x 11' 0" (3.80m x 3.35m) Double glazed window to front aspect. Fitted carpet. Built in wardrobe. Radiator.

Bedroom Three

7' 9" x 6' 0" (2.35m x 1.82m) Double glazed window to front aspect with fitted shutters to remain. Fitted carpet. Radiator.

Study / Dressing Room

7' 6" x 6' 9" (2.28m x 2.05m) Fitted carpet. Radiator. Door to family bathroom.

Bathroom

Four piece suite comprising vanity wash hand basin, low level WC, fully tiled shower cubicle and jacuzzi bath tub with shower attachment over. Shaver point. Heated towel rail. Tiled effect vinyl flooring. Obscure double glazed window to rear aspect with fitted shutters to remain.

Outside

Front Garden

Block paved driveway with space for up to three cars. Gravel area. Gated bin stores. Gated access to rear garden. Low level brick retaining wall. Established tree.

Rear Garden

South East facing rear garden with paved patio area. Grassed lawn area with paved path through the middle. Water feature to remain. External water tap to rear and side of the property. External power sockets. Gated side access to driveway. Further patio area to rear with summer house. Greenhouse and garden shed to remain. Gate through to next garden section which is mainly laid to lawn and with raised vegetable/flower beds.

Summer House

9' 10" x 7' 7" (3.00m x 2.30m) Power, light and plumbing in place.


High Street, Arlesey, Bedfordshire

Mortgage calculator
years
%
Calculate Your Stamp Duty
£
Results
Stamp Duty To Pay:
Effective Rate:
Tax Band % Taxable Sum Tax
Enquire Now
01462 834022 Viewing Request Request Details Book a valuation

Share This Property

Country Properties Stotfold

1 Arlesey Road, Stotfold, Bedfordshire, SG5 4HA