£415,000 Guide Price

3 bedroom House Sold STC

Hardy Close, Hitchin, Hertfordshire
  • 3 Beds
  • 1 Baths
  • 2 Reception

Key Details

Material Information

Property Description

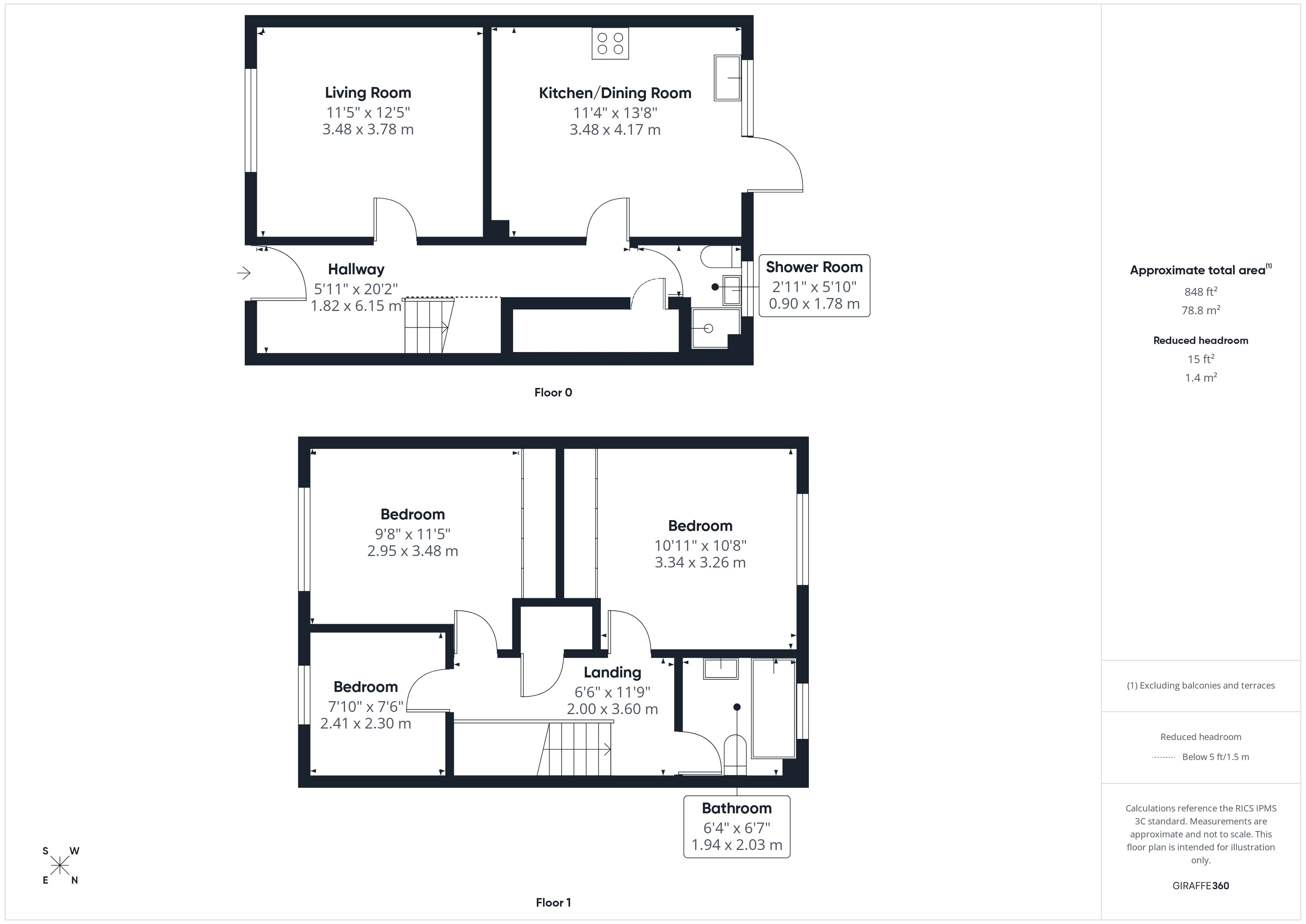
A well presented three bedroom terraced family home, offered to the market with no onward chain, this property provides modern, comfortable living in a practical layout.

The ground floor begins with a welcoming entrance hall that leads into a bright and spacious living room, creating a warm and relaxing space. To the rear, the modern fitted kitchen/dining room offers an excellent hub for cooking, dining, and entertaining, with ample storage and work surfaces. A contemporary shower room and a generous cupboard completes the ground floor, finished to a high standard for added convenience.

Upstairs, the first floor features two generous double bedrooms, both benefiting from fitted wardrobes, providing excellent storage. A further single bedroom offers flexibility. The accommodation is served by a modern family bathroom.

Outside, the property enjoys an enclosed rear garden, offering a private outdoor space ideal for relaxing or play. To the front, a paved area provides a neat, low maintenance approach to the home.

The property has benefitted from some updates with all the windows and doors replaced in the last five years as well as the rear garden being landscaped. The loft is partly boarded with light and foldable ladder.

Hitchin is a charming medieval market town and has many fine Tudor and Georgian buildings, particularly around the market square. Near to the market square stands the large medieval parish church of St Mary. The town provides good shopping as well as a swimming pool, football team, two theatres, a wide variety of restaurants and pubs and highly regarded girls’ and boys’ schools. There is also a mainline railway station providing direct access to Kings Cross and Cambridge.


Hardy Close, Hitchin, Hertfordshire

Mortgage calculator
years
%
Calculate Your Stamp Duty
£
Results
Stamp Duty To Pay:
Effective Rate:
Tax Band % Taxable Sum Tax
Enquire Now
01462 452951 Viewing Request Request Details Book a valuation

Share This Property

Country Properties Hitchin

6 Brand Street, Hitchin, SG5 1HX