£400,000 Offers in excess of

3 bedroom House For Sale

Clifton, Shefford, Bedfordshire
  • 3 Beds
  • 2 Baths
  • 1 Reception

Key Details

Material Information

Property Description

This well presented three bedroom CHAIN FREE detached home in the popular village of Clifton. The property has a generous garden and is within easy reach of the village centre, residents can enjoy a range of amenities including a public house, Tesco Express, post office, butchers, community centre, and highly regarded schools, making this an ideal home for families and commuters alike.

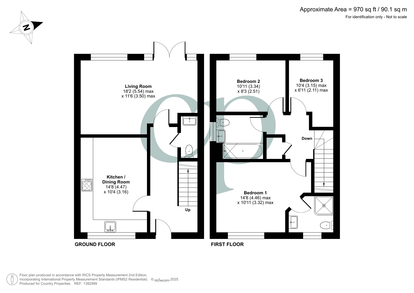
Ground Floor

Entrance Hall

Stairs to first floor. Understairs storage cupboard. Tiled flooring. Underfloor heating.

Cloakroom

Suite comprising of: WC, pedestal wash hand basin. Porcelanosa tiling. Heated towel rail. Extractor. Tiled flooring. Underfloor heating.

Kitchen/Dining Room

14' 8" x 10' 4" (4.47m x 3.15m) Range of base and wall units with complementary work surfaces over. Single stainless steel sink with swan neck mixer tap over. Integrated electric oven with Siemens 4 ring gas hob and extractor hood over. Integrated dishwasher. Integrated fridge freezer. Space and plumbing for washer/dryer. Boiler. Under floor heating. Tiled flooring. Dual aspect double glazed windows to front and side.

Living Room

18' 2" x 11' 6" (5.54m x 3.51m) Double glazed window to rear and double glazed patio doors leading to rear garden. Tiled flooring. Underfloor heating.

First Floor

Landing

Loft access. Cupboard housing cylinder. Radiator, Doors leading to:

Bedroom 1

14' 8" x 10' 11" (4.47m x 3.33m) Double glazed window to front. Built in wardrobes. Radiator. USB socket. TV point. Door leading to:

En-suite

Three piece suite comprising: Separate corner shower cubicle, WC, pedestal wash hand basin. Porcelanosa tiling. Heated towel rail. Karndean flooring. Obscure double glazed window to front.

Bedroom 2

10' 11" x 8' 3" (3.33m x 2.51m) Double glazed window to rear. Radiator. TV point.

Bedroom 3

10' 4" x 6' 11" (3.15m x 2.11m) Double glazed window to rear. Radiator.

Bathroom

Three piece suite comprising of: Panelled bath fitted with wall mounted shower and glass screen. Pedestal wash hand basin. WC. Heated towel rail. Extractor. Karndean wood effect flooring. Obscure double glazed window to side.

Outside

Front Garden

Pathway leading to front door with mature shrub borders. Driveway providing off road parking for 3 cars.

Rear Garden

Landscaped low maintenance rear paved garden. Wooden shed to remain. Gated access to side.

Agents Note

The vendor informs us that there is a management fee payable for the communal areas of approx £25.34 payable monthly to The Paddock, Clifton.<br /><br />Broadband Internet fibre to the property.<br /><br />Builders 10 year warranty commenced 2020 from new.<br /><br />We advise any buyer to confirm this information with their legal representative prior to exchange of contracts.<br /><br />For all your mortgage needs contact Dawn Olney at Mortgage Vision on 01462 811822 or email: enquiries @mortgagevision.co.uk


Clifton, Shefford, Bedfordshire

Mortgage calculator
years
%
Calculate Your Stamp Duty
£
Results
Stamp Duty To Pay:
Effective Rate:
Tax Band % Taxable Sum Tax
Enquire Now
01462 811822 Viewing Request Request Details Book a valuation

Share This Property

Country Properties Shefford

46-48 High Street, Shefford, Bedfordshire, SG17 5DG