£450,000

3 bedroom House For Sale

Clifton, Shefford, Bedfordshire
  • 3 Beds
  • 1 Baths
  • 2 Reception

Key Details

Material Information

Property Description

OPEN HOUSE VIEWINGS - (BY APPOINTMENT ONLY) - 1st NOVEMBER 2025

**MORE PHOTOS TO FOLLOW** A rare chance to make your mark, with clear potential to extend (STPP). Offered with no upward chain and set on a generous plot, this three-bedroom home in a sought-after village presents an excellent opportunity to create your dream home.

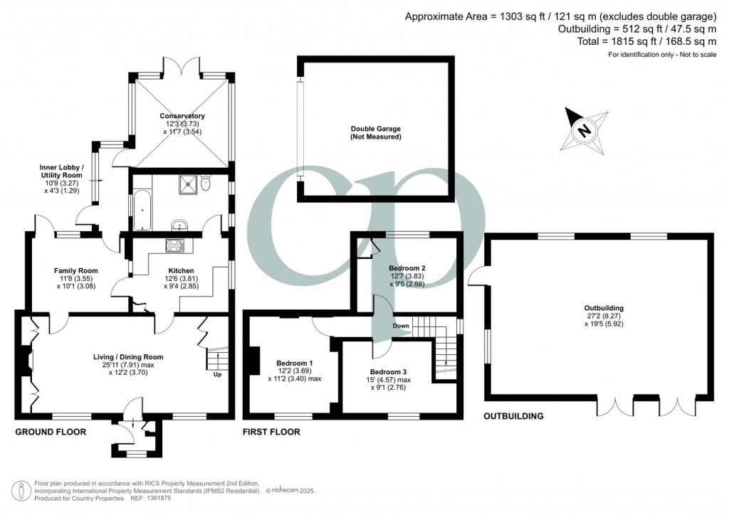
Ground Floor

Entrance Porch

Double glazed window to front. Tiled flooring. Radiator. Door into Living room.

Living/Dining Room

25' 11" x 12' 2" (7.90m x 3.71m) Two double glazed window to front. Feature fireplace with tiled hearth and fitted shelving to recesses. Wood effect flooring. Radiator. Under stairs storage cupboard. Stairs raising to first floor.

Kitchen

12' 6" x 9' 4" (3.81m x 2.84m) Obscure double glazed window to side. A range of wall and base units with oak worksurfaces over and upstands. Inset ceramic one and a half bowl sink drainer unit with swan neck mixer tap over. Space for Range cooker. Space for fridge freezer. Door into family room and bathroom.

Family Room

11' 8" x 10' 1" (3.56m x 3.07m) Double glazed window to rear and double glazed door onto rear garden. Ceramic tiled flooring. Door to Inner lobby.

Family Bathroom

Two obscure double glazed windows to side. Four piece suite comprising bath, shower cubicle, pedestal wash hand basin, low level WC. Fully tiled walls, chrome heated towel rail.

Inner Lobby/Utility

Ceramic tiled flooring. Space and plumbing for washing machine. Space for tumble dryer. Door leading into Conservatory.

Conservatory

12' 3" x 11' 7" (3.73m x 3.53m) UPVC double glazed on brick base with French doors leading to rear garden. Tiled flooring. Radiator.

First Floor

Landing

Loft access. Doors into all bedrooms.

Bedroom 1

12' 2" x 11' 2" (3.71m x 3.40m) Double glazed window to front. Radiator. Strip wood flooring. Built in wardrobes with overhead storage.

Bedroom 2

12' 7" x 9' 5" (3.84m x 2.87m) Double glazed window to rear. Radiator. Airing cupboard housing hot water tank and shelving.

Bedroom 3

15' 0" x 9' 1" (4.57m x 2.77m) Double glazed window to front. Radiator.

Outside

Front Garden

Laid to lawn with hedge screening. Driveway provides off road parking.

Rear Garden

Rear garden is in 2 sections both laid to lawn leading down to outbuildings. Water tap. Gated access to front.<br />

Outbuilding

27' 2" x 19' 5" (8.28m x 5.92m) Timber construction outbuilding. Two windows to rear. Window to side. Two sets of double doors to front with door to side. Ample power points and lighting.

Double Garage

Double garage fitted with up & over door.

Agents Note

For all your mortgage needs contact Dawn Olney at Mortgage Vision on 01462 811822 or email: enquiries @mortgagevision.co.uk<br /><br />PRELIMINARY DETAILS - NOT YET APPROVED AND MAY BE SUBJECT TO CHANGES<br />


Clifton, Shefford, Bedfordshire

Mortgage calculator
years
%
Calculate Your Stamp Duty
£
Results
Stamp Duty To Pay:
Effective Rate:
Tax Band % Taxable Sum Tax
Enquire Now
01462 811822 Viewing Request Request Details Book a valuation

Share This Property

Country Properties Shefford

46-48 High Street, Shefford, Bedfordshire, SG17 5DG