£350,000 Offers in excess of

3 bedroom House Sold STC

Chicksands, Shefford, Bedfordshire
  • 3 Beds
  • 1 Baths
  • 1 Reception

Key Details

Material Information

Property Description

This well-presented end-of-terrace home offers three spacious double bedrooms and the convenience of off-road parking with a driveway for two cars. Situated on the sought-after 'Chicksands' development, the property enjoys access to plenty of communal green spaces, creating a family-friendly environment.

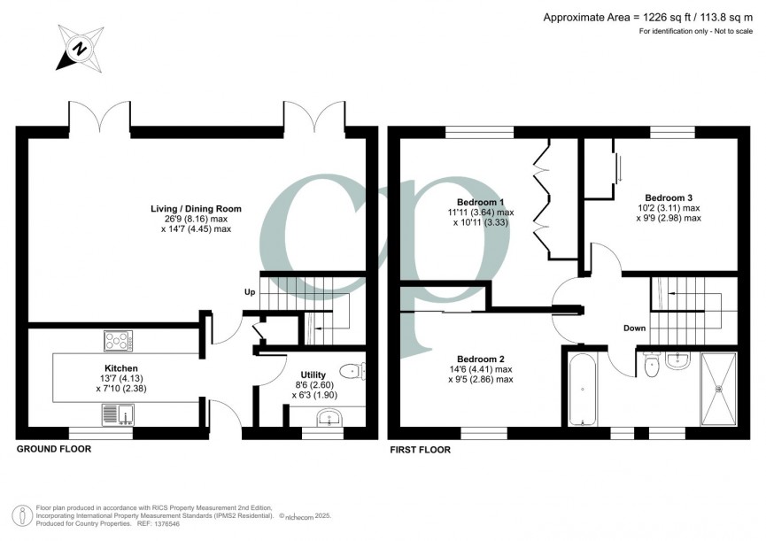
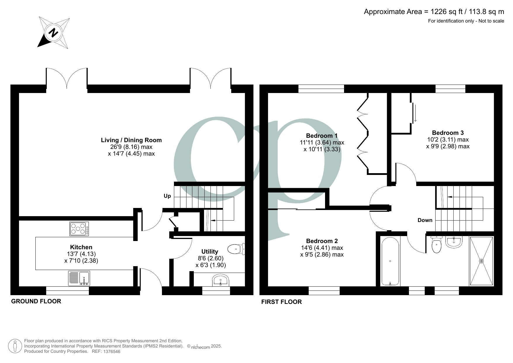
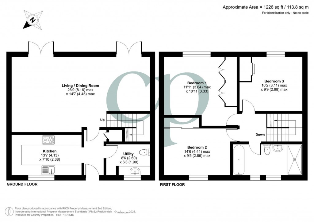
GROUND FLOOR

Enter Via

Frosted part glazed door into entrance hall.

Entrance Hall

Open into kitchen. Part glazed door to lounge. Door to utility room/WC. Door to under stairs storage cupboard. Tiled flooring. Radiator.

Kitchen

13' 7" x 7' 10" (4.14m x 2.39m) Double glazed window to front aspect. Radiator. Re fitted with Shaker style base and eye level units with solid wood worksurfaces and tiled splashbacks, Butler sink with mixer tap over. Space for American style fridge freezer. Integrated dishwasher. Range cooker with extractor hood over. Wall mounted gas boiler enclosed in a cupboard.

Utility/Cloakroom

9' 3" x 8' 6" (2.82m x 2.59m) UPVC frosted double glazed window to front aspect. Radiator. Range of base units with complementary work surfaces over. Space & plumbing for washing machine and tumble dryer. Low level WC. Extractor fan. Tiled flooring.

Lounge/Diner

26' 9" x 14' 7" (8.15m x 4.45m) Two sets of double glazed French doors to rear aspect leading into garden. Two radiators. Wood effect flooring. Stairs rising to first floor accommodation.

FIRST FLOOR

Landing

Door to all rooms. Hatch to loft space.

Bedroom One

11' 11" x 10' 11" (3.63m x 3.33m) at maximum point. Double glazed window to rear aspect. Radiator. Range of built in wardrobes. Wooden flooring.

Bedroom Two

14' 6" x 9' 5" (4.42m x 2.87m) Double glazed window to rear aspect. Radiator. Built in wardrobes. Wooden flooring.

Bedroom Three

10' 2" x 9' 9" (3.10m x 2.97m) Double glazed window to front aspect. Radiator. Built in wardrobes.

Bathroom

Two UPVC frosted double glazed windows to front aspect. Heated towel rail. Four piece suite comprising of low level wc, wash hand basin with mixer taps and storage beneath. Fully tiled walk in double shower. Free standing bath with mixer taps and shower attachment. Tiled flooring. Part tiled walls.

OUTSIDE

Outside to front

Driveway providing off road parking x 1 car. Further allocated parking space for x 1 car. Path leading to front door.

Outside to rear

Low maintenance rear garden enclosed by timber fencing. Mainly paved patio area with decking area. Mature trees, plants and shrubs. Gated rear access. Communal grass areas.

Agents Note

We understand the owner pays approx £70 pcm payable to 'Preim' for the maintenance of the communal areas.<br />Water and sewage us now under Anglian Water.<br /><br />We advise any buyer to confirm this information with their legal representative prior to exchange of contracts.<br /><br />For all your mortgage needs contact Dawn Olney at Mortgage Vision on 01462 811822 or email: enquiries @mortgagevision.co.uk<br /><br />PRELIMINARY DETAILS - NOT YET APPROVED AND MAY BE SUBJECT TO CHANGES<br />


Chicksands, Shefford, Bedfordshire

Mortgage calculator
years
%
Calculate Your Stamp Duty
£
Results
Stamp Duty To Pay:
Effective Rate:
Tax Band % Taxable Sum Tax
Enquire Now
01462 811822 Viewing Request Request Details Book a valuation

Share This Property

Country Properties Shefford

46-48 High Street, Shefford, Bedfordshire, SG17 5DG