£450,000

3 bedroom House Sold STC

Ampthill, Bedford
  • 3 Beds
  • 2 Baths
  • 1 Reception

Key Details

Material Information

Property Description

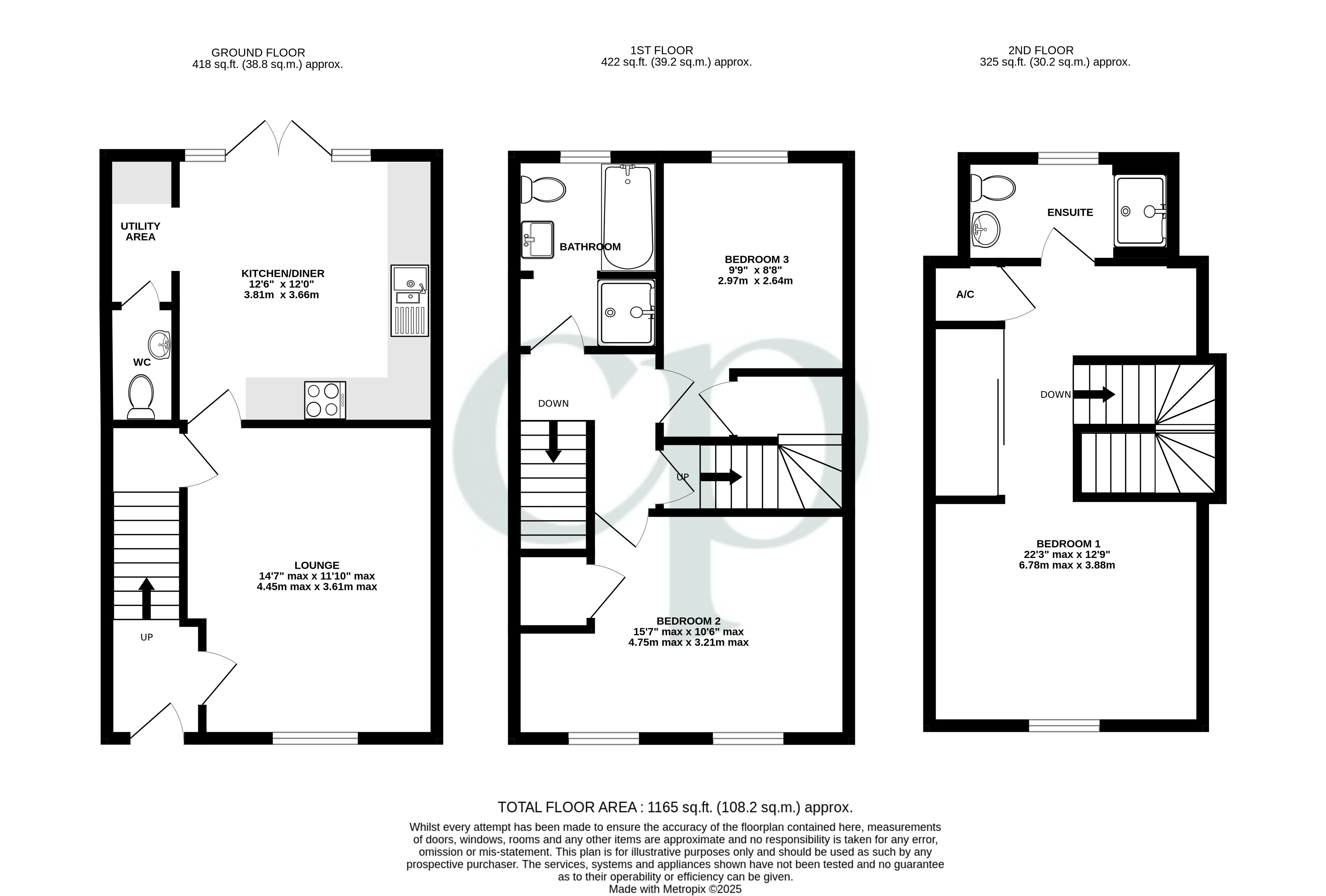
One of only a few examples of this house type on the whole Ampthill Chase development. It's stunning open-plan top floor with gallery landing and larger than average garden accessible via the kitchen/diner - a real must see for those looking for the best 3 bed town house on the estate!

Ground Floor

Entrance Hall

UPVC entrance hall to the front, radiator.

Lounge

Under stairs cupboard, double glazed window to the front with fitted shutters, radiator.

Kitchen/Diner

A range of base and wall mounted units with work surfaces over, 1.5 basin composite sink and drainer with mixer tap, split-level ovens and electric hob with extractor over, integrated fridge freezer and dishwasher, French doors opening to the rear garden, radiator.

Utility Area

A range of base and wall mounted units, integrated washing machine, gas boiler.

First Floor

Landing

Stairs rising to second floor.

Bedroom Two

Cupboard over stairs, two double glazed windows to the front, radiator.

Bedroom Three

Under stairs cupboard, double glazed window to the rear, radiator.

Bathroom

A suite comprising of a panelled bath and separate shower cubicle, low level WC, wash hand basin, heated towel rail, double glazed window to the rear with fitted shutters.

Second Floor

Bedroom One

Fitted wardrobes, access to loft, airing cupboard housing hot water tank, double glazed window to the front, two radiators.

Ensuite

A suite comprising of a shower cubicle, low level WC, wash hand basin, heated towel rail, double glazed window to the rear.

Outside

Rear Garden

A beautifully landscaped, south-facing rear garden with sleeper-lined raised beds, a shaped lawn area plus patio seating areas. There is also a useful storage shed.

Parking

Off-road parking for three cars.

NB

It is becoming increasingly likely that modern developments have a management company responsible for communal areas such as play areas and opens greens, therefore this will usually incur management fees.


Ampthill, Bedford

Mortgage calculator
years
%
Calculate Your Stamp Duty
£
Results
Stamp Duty To Pay:
Effective Rate:
Tax Band % Taxable Sum Tax
Enquire Now
01525 403033 Viewing Request Request Details Book a valuation

Share This Property

Country Properties Ampthill

1 Church Street, Ampthill, Bedfordshire, MK45 2PJ