£300,000 Guide Price

2 bedroom House Sold STC

Tulip Close, Biggleswade, Bedfordshire
  • 2 Beds
  • 1 Baths
  • 1 Reception

Key Details

Material Information

Property Description

SALE AGREED PRIOR TO MARKETING

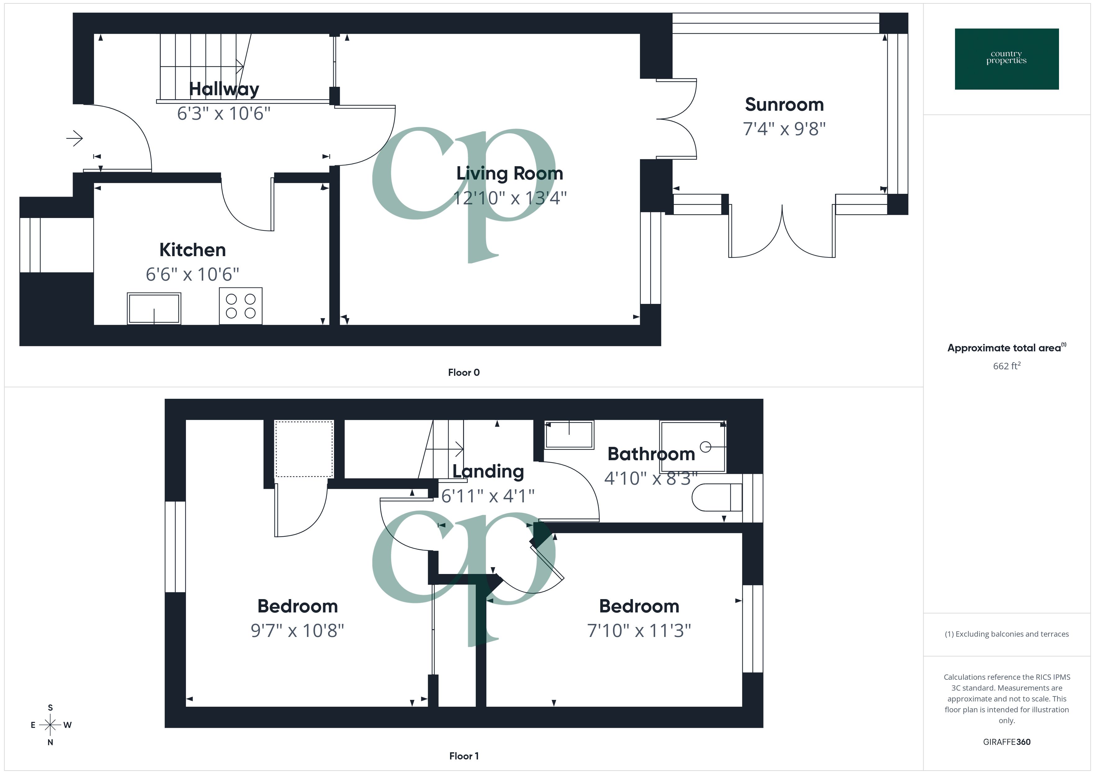
Offered CHAIN FREE, this very well positioned two bedroom terraced house is positioned within the Saxon Gate Development in Biggleswade. Having been built in the 1990's by Wimpey Homes, the vendor has had the property from brand-new, and has looked after the house very well, making it a perfect opportunity for first time buyers, investors and downsizers alike. Set over two floors, this two-storey residence includes a total area of circa 660 square feet, carefully designed to maximize living space and provide a warm and inviting environment for you and your family.

The ground floor hallway leads to a fully functional kitchen, complete with ample storage. A generously sized reception room that can be utilized per your needs includes a spacious storage cupboard, and extends into a lovely sunroom/conservatory, allowing an ample amount of natural light that creates a bright atmosphere.

On the first floor, there are two very well proportioned bedrooms - the master room featuring built in storage. The tiled bathroom features a shower unit, wash hand basin, and W.C. .

Externally, the property features a lovely laid to lawn garden which is accessed via the sun room/conservatory, and includes a conveniently situated storage shed. To the front of the property, there is a tandem driveway which provides off road parking for two cars.

Location

Biggleswade Town Centre is steeped with history, and is up & coming with all your amenities and a retail park. It also has great commuting links into London Kings Cross via train, good schooling and local cafes, restaurants and bars and has easy access directly onto the A1M and commutable links to the M1 and M11, and also within 15 miles of London Luton Airport.

(All purchasers must complete an AML and financial sanctions check once a sale is agreed (subject to contract). The check is carried out by our third-party provider at a cost of £60 including VAT per property, payable by the applicant(s).)


Tulip Close, Biggleswade, Bedfordshire

Mortgage calculator
years
%
Calculate Your Stamp Duty
£
Results
Stamp Duty To Pay:
Effective Rate:
Tax Band % Taxable Sum Tax
Enquire Now
Viewing Request Request Details Book a valuation

Share This Property

Country Properties Biggleswade

79 High St, Biggleswade, Beds, SG18 0LA