£400,000 Offers in excess of

2 bedroom House For Sale

Silsoe, Bedfordshire
  • 2 Beds
  • 1 Baths
  • 4 Reception

Key Details

Material Information

Property Description

"The Cottage" Extended period semi-detached home approaching 117sqm dating back to the 1840's. Originally built by the distinguished De Grey family, this residence sits beside an English Heritage Grade I listed building and offers a rare blend of historic charm and modern comfort.

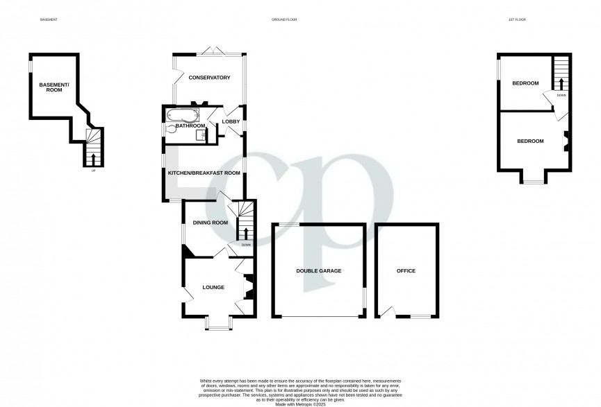
Ground Floor

Entrance Hall

Double glazed entrance door, radiator.

Lounge

14' 1" x 11' 11" (4.29m x 3.63m) Open fireplace, fitted units into alcoves, double glazed window to the front, radiator.

Dining Room

11' 1" x 9' 2" (3.38m x 2.79m) Log burner, double glazed window to the side, radiator, latch door to:

Basement/Study

14' 1" x 9' 5" (4.29m x 2.87m) Window to the rear. escape route/stairs.

Kitchen/Breakfast Room

15' 2" x 9' 2" (4.62m x 2.79m) A range of base and wall mounted units with wooden work surfaces over, Butler sink, gas hob with oven under, space for fridge freezer, wall mounted boiler, double glazed windows to the front and side with fitted shutters, radiator.

Conservatory

13' 10" x 9' 9" (4.22m x 2.97m) Log burner, side door and double French doors opening to the garden.

Inner Lobby

Double glazed window to the side, radiator.

Bathroom

A suite comprising of a panelled bath with rainfall shower over, low level WC, wash hand basin, heated towel rail and radiator, double glazed window to the side with fitted shutters. Built in cupboard for washing machine.

First Floor

Bedroom One

14' 6" x 14' 1" (4.42m x 4.29m) Feature fireplace, fitted wardrobes, double glazed bay window to the front, radiator. Built in storage cupboard.

Bedroom Two

11' 3" x 9' 1" (3.43m x 2.77m) Access to loft, airing cupboard housing hot water tank, double glazed window to the side with fitted shutters, radiator.

Outside

Rear Garden

Patio with wooden pergola over, mature shrub borders.Access to the Office and double garage.

Double Garage/Parking

19' 5 x14' 7" (5.92m x 4.45m ) Detached double garage and separate office/workshop plus several off-road parking spaces.


Silsoe, Bedfordshire

Mortgage calculator
years
%
Calculate Your Stamp Duty
£
Results
Stamp Duty To Pay:
Effective Rate:
Tax Band % Taxable Sum Tax
Enquire Now
01525 403033 Viewing Request Request Details Book a valuation

Share This Property

Country Properties Ampthill

1 Church Street, Ampthill, Bedfordshire, MK45 2PJ