£260,000 Guide Price

2 bedroom House Sold STC

Millwright Way, Flitwick, Bedfordshire
  • 2 Beds
  • 1 Baths
  • 1 Reception

Key Details

Material Information

Property Description

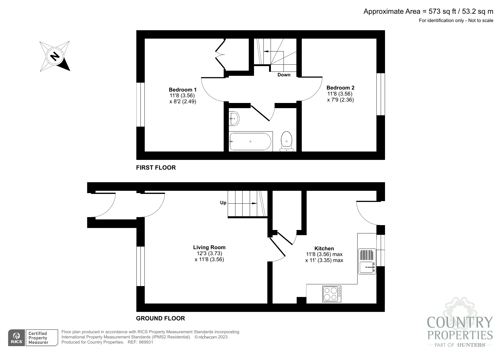
With the benefit of allocated parking and no upper chain, this mid terrace home offers rear views over allotments and features accommodation to include a living room, fitted kitchen, two double bedrooms and first floor bathroom. There is an enclosed garden to the rear. There is a handy convenience store on neighbouring Windmill Road, whilst the mainline rail station and further town centre amenities are within just 0.8 miles. In our opinion, the property would make a great first step on the property ladder, or buy to let investment with a current potential rental income of approx. £1,050 pcm. EPC Rating: D.

GROUND FLOOR

ENTRANCE PORCH

Accessed via front entrance door with opaque glazed inserts. Door to:

LIVING ROOM

Leaded light effect double glazed window to front aspect. Wall mounted electric storage heater. Staircase to first floor landing. Coving to ceiling. Door to:

KITCHEN/DINING ROOM

Leaded light effect double glazed window and door to rear garden. A range of base and wall mounted units with work surface areas incorporating stainless steel sink and drainer with mixer tap. Part tiled walls. Built-in electric oven and hob with extractor over. Space for washing machine. Wall mounted electric storage heater. Built-in under stairs storage cupboard with shelving.

FIRST FLOOR

LANDING

Loft access. Doors to both bedrooms and bathroom.

BEDROOM 1

Leaded light effect double glazed window to front aspect. Wall mounted electric heater. Built-in cupboard over stair bulkhead with shelving, housing water tank.

BEDROOM 2

Leaded light effect double glazed window to rear aspect. Wall mounted electric heater.

BATHROOM

Three piece suite comprising: Panelled bath with mixer tap/shower attachment, close coupled WC and pedestal wash hand basin. Part tiled walls. Extractor.

OUTSIDE

FRONT GARDEN

Small gravelled area. Paved pathway leading to front entrance door.

REAR GARDEN

Immediately to the rear of the property is a paved patio area with pathway extending through the lawned garden to gated rear access. Enclosed by timber panelled and picket fencing.

OFF ROAD PARKING

Allocated parking.<br /><br />Current Council Tax Band: B.


Millwright Way, Flitwick, Bedfordshire

Mortgage calculator
years
%
Calculate Your Stamp Duty
£
Results
Stamp Duty To Pay:
Effective Rate:
Tax Band % Taxable Sum Tax
Enquire Now
01525 721000 Viewing Request Request Details Book a valuation

Share This Property

Country Properties Flitwick

3 The Russell Centre, Coniston Road, Flitwick, Beds, MK45 1QY.