This spacious two bedroom home is offered in superb condition with off road parking for two cars to the rear and countryside walks on your doorstep.
Door into Living Room.
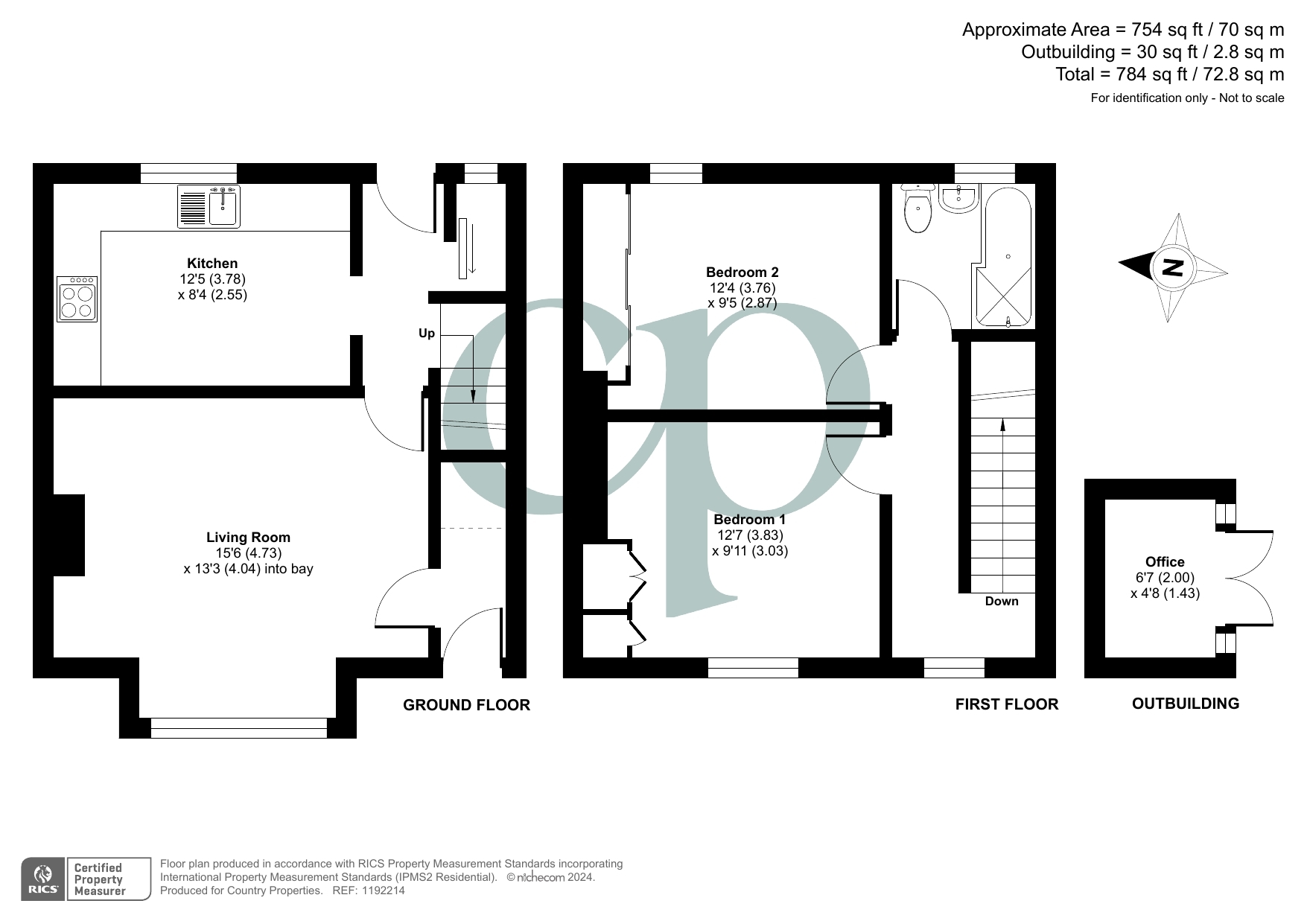
15' 6" x 13' 3" (4.72m x 4.04m) Double glazed bay window to front. Radiator. Door into:
Stairs rising to first floor. Door opening onto rear garden. Sliding door to storage area with double glazed window to rear and space and vent tumble dryer. Radiator. Door into:
12' 5" x 8' 4" (3.78m x 2.54m) A range of wall and base units with worksurfaces over and high gloss brick effect splash back tiling. Under unit lighting. Inset stainless steel sink with drainer and mixer tap over. Built in electric oven and gas hob with glass splashback. Space for fridge/freezer. Integrated dishwasher and washing machine. Radiator. Wall mounted gas boiler. Double glazed window to rear.
Access to boarded loft space with ladder and light. Double glazed window to front aspect. Radiator. Doors into all rooms.
12' 7" x 9' 11" (3.84m x 3.02m) Double glazed window to front aspect. Built in wardrobe. Radiator.
12' 4" x 9' 5" (3.76m x 2.87m) Double glazed window to rear aspect. Radiator. Built in wardrobe.
White suite comprising panel enclosed 'P' shaped bath with mains shower and curved glass side screen, pedestal mounted wash hand basin and low level flush wc. Tiled splashbacks. Extractor fan. Chrome heated towel rail. Obscure double glazed window to front aspect.
Laid to lawn with shrub borders and block paved pathway to front door. Enclosed by privet hedge. Outside light.
South easterly facing rear garden with paved patio and laid to lawn with flower and shrub borders. Gated access to rear leading to parking area. Cold water tap.
The owner informs us there is a service charge of approx £1000 per annum to cover water and sewage charges and the upkeep of communal areas and the private road. We suggest any buyer confirms this with their legal representative prior to exchange of contracts.<br /><br />For all your mortgage needs contact Dawn Olney at Mortgage Vision on 014692 811822 or email: [email protected]<br /><br />PRELIMINARY DETAILS - NOT YET APPROVED AND MAY BE SUBJECT TO CHANGES
| Tax Band | % | Taxable Sum | Tax |
|---|