£350,000

3 bedroom House For Sale

Bridge View, Shefford, Bedfordshire
  • 3 Beds
  • 2 Baths
  • 1 Reception

Key Details

Material Information

Property Description

This 2-3 bedroom freehold detached coach house with private garden is tucked away yet is within walking distance of the town centre amenities.

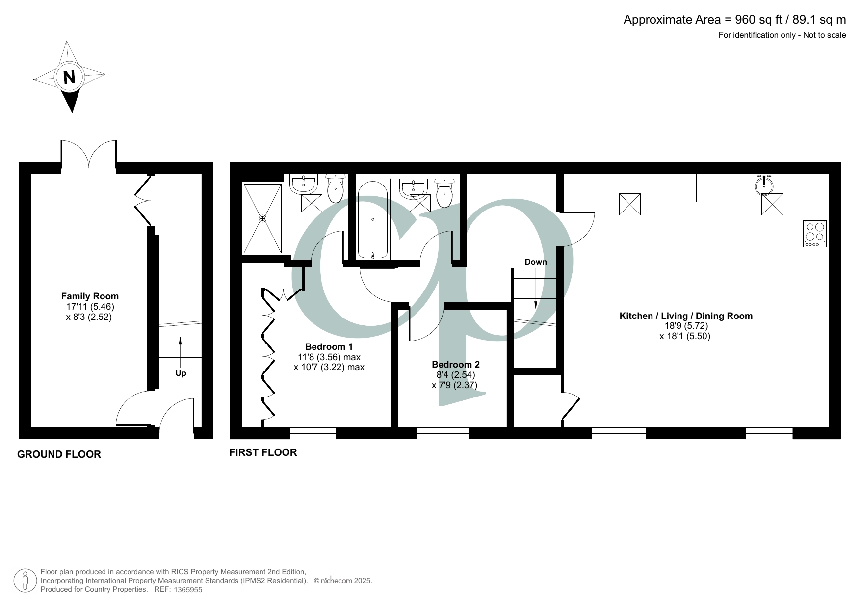
Ground Floor

Entrance Hall

Stairs rising to first floor accommodation. Wood effect flooring. Door into:

Study/Family Room

17' 0" x 8' 3" (5.18m x 2.51m) Double glazed French doors opening onto rear garden. Large storage cupboard. Radiator. Wood effect flooring.

First Floor

Landing

Access to loft space. Radiator.

Living/Diner/Kitchen Area

18' 9" x 18' 0" (5.71m x 5.49m) Lounge/Diner: Dual aspect with two double glazed windows to front plus further double glazed Velux window to rear. Built in storage cupboard. Two radiators.<br /><br />Kitchen Area: A range of wall and base units with rolled edge worksurfaces and upstands plus further high gloss brick effect tiled surrounds. Integrated electric oven & gas hob with stainless steel extractor hood over. Integrated washing machine and dishwasher. Integrated fridge freezer. Cupboard housing wall mounted combi boiler (New 2026). Sink with drainer and mixer tap over. Ceramic tiled flooring. Two Velux windows to rear.

Bedroom 1

11' 8" x 10' 7" (3.56m x 3.23m) Double glazed window to front. A range of fitted wardrobes. Radiator. Door leading to:

En-Suite Shower Room

Suite comprising low level flush wc, pedestal mounted wash hand basin and double shower cubicle. Partially tiled walls and ceramic tiled flooring. Extractor. Shaver point. Radiator. Velux window to rear.

Bedroom 2

8' 4" x 7' 9" (2.54m x 2.36m) Double glazed window to front. Radiator.

Bathroom

Three piece suite comprising low level flush wc, pedestal mounted wash hand basin and panel enclosed bath with shower attachment. Partially tiled walls and ceramic tiled flooring. Shaver point. Radiator. Velux window to rear.

Outside

Rear Garden

Fully enclosed low maintenance south facing rear garden with paved patio area and gated access to side. Cold water tap.

Parking

Off road parking for 1-2 cars.

Agents Note

We have been advised that there is a service charge via Premier of approx £140 per annum, which is paid over 6 monthly instalments of £24 per month and is for the upkeep of the development.<br /><br />We understand the study/bedroom 3 is a garage conversion completed by the previous owner. We would advise any buyer to check the paperwork/legal position in relation to the conversion prior to exchange of contracts. <br /><br />For all your mortgage needs contact Dawn Olney at Mortgage Vision on 01462 811822 or email: enquiries @mortgagevision.co.uk<br /><br />PRELIMINARY DETAILS - NOT YET APPROVED AND MAY BE SUBJECT TO CHANGES<br /><br />


Bridge View, Shefford, Bedfordshire

Mortgage calculator
years
%
Calculate Your Stamp Duty
£
Results
Stamp Duty To Pay:
Effective Rate:
Tax Band % Taxable Sum Tax
Enquire Now
01462 811822 Viewing Request Request Details Book a valuation

Share This Property

Country Properties Shefford

46-48 High Street, Shefford, Bedfordshire, SG17 5DG