£250,000

2 bedroom House For Sale

Ampthill Road, Shefford, Bedfordshire
  • 2 Beds
  • 1 Baths
  • 1 Reception

Key Details

Material Information

Property Description

This charming CHAIN FREE two-bedroom cottage, dating back to the 1840s, is ideally located just a short walk from Shefford High Street and it's amenities. Offering the perfect blend of character and convenience, the property is only a brief drive to Arlesey, providing direct train links into London. Shefford offers an abundance of scenic walking routes right on your doorstep.

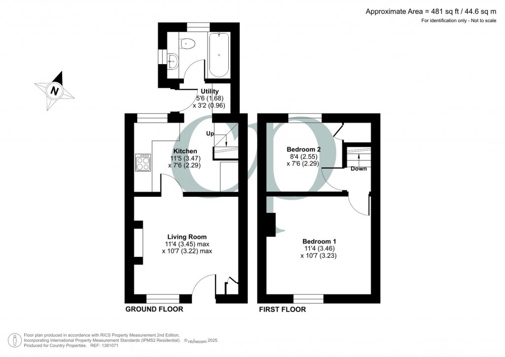
Ground Floor

Living Room

11' 4" x 10' 7" (3.45m x 3.23m) Wood effect flooring. Feature brick fireplace. Exposed ceiling beams.<br />Radiator. Multi pane double glazed window to front.<br />

Kitchen

11' 5" x 7' 6" (3.48m x 2.29m) A range of wall & base units with roll edge worksurfaces over. Inset one and a half stainless steel sink & drainer unit with swan neck mixer tap over. Built in electric oven & hob with extractor hood over. Space for fridge. Exposed ceiling beams. Radiator. Exposed ceiling beams. Radiator. Ceramic tiled flooring. Stairs rising to first floor. Multi pane double glazed window to rear. Archway through to Inner lobby.

Inner Lobby/Utility Room

5' 6" x 3' 2" (1.68m x 0.97m) Space & plumbing for washing machine with worksurface over. Ceramic tiled flooring. Multi pane double glazed door onto rear garden. Door leading to Bathroom.

Bathroom

Suite comprising panel enclosed bath with electric shower over & glass side screen with tiled splashbacks. Chrome heated towel rail. Low level WC, vanity wash hand basin. Ceramic tiled flooring. Multipane double glazed window to side & rear.<br />

First Floor

Landing

Doors into Bedroom 1 & Bedroom 2

Bedroom 1

11' 4" x 10' 7" (3.45m x 3.23m) Multipane double glazed window to front. Radiator. Loft access.

Bedroom 2

8' 4" x 7' 6" (2.54m x 2.29m) Double glazed window to rear. Radiator. Airing cupboard housing hot water tank.

Outside

Rear Garden

Decked patio. Gated access to side for wheelie bin access & neighbouring property. Wheelie bin storage. Laid mainly to lawn. Water tap. Service Light.<br /><br />

Agents Note

There is a right of way across the garden for no 48 and no 46 benefits from a right of way across the neighbouring cottages to the right to provide access to the front of the property. We advise any interested party to confirm with their legal representative prior to exchange of contacts.<br /><br />For all your mortgage needs contact Dawn Olney at Mortgage Vision on 01462 811822 or email: enquiries @mortgagevision.co.uk<br /><br />PRELIMINARY DETAILS - NOT YET APPROVED AND MAY BE SUBJECT TO CHANGES<br /><br />


Ampthill Road, Shefford, Bedfordshire

Mortgage calculator
years
%
Calculate Your Stamp Duty
£
Results
Stamp Duty To Pay:
Effective Rate:
Tax Band % Taxable Sum Tax
Enquire Now
01462 811822 Viewing Request Request Details Book a valuation

Share This Property

Country Properties Shefford

46-48 High Street, Shefford, Bedfordshire, SG17 5DG