£250,000 Guide Price

2 bedroom Flat Sold STC

Shortmead Street, Biggleswade, Bedfordshire
  • 2 Beds
  • 1 Baths
  • 1 Reception

Key Details

Material Information

Property Description

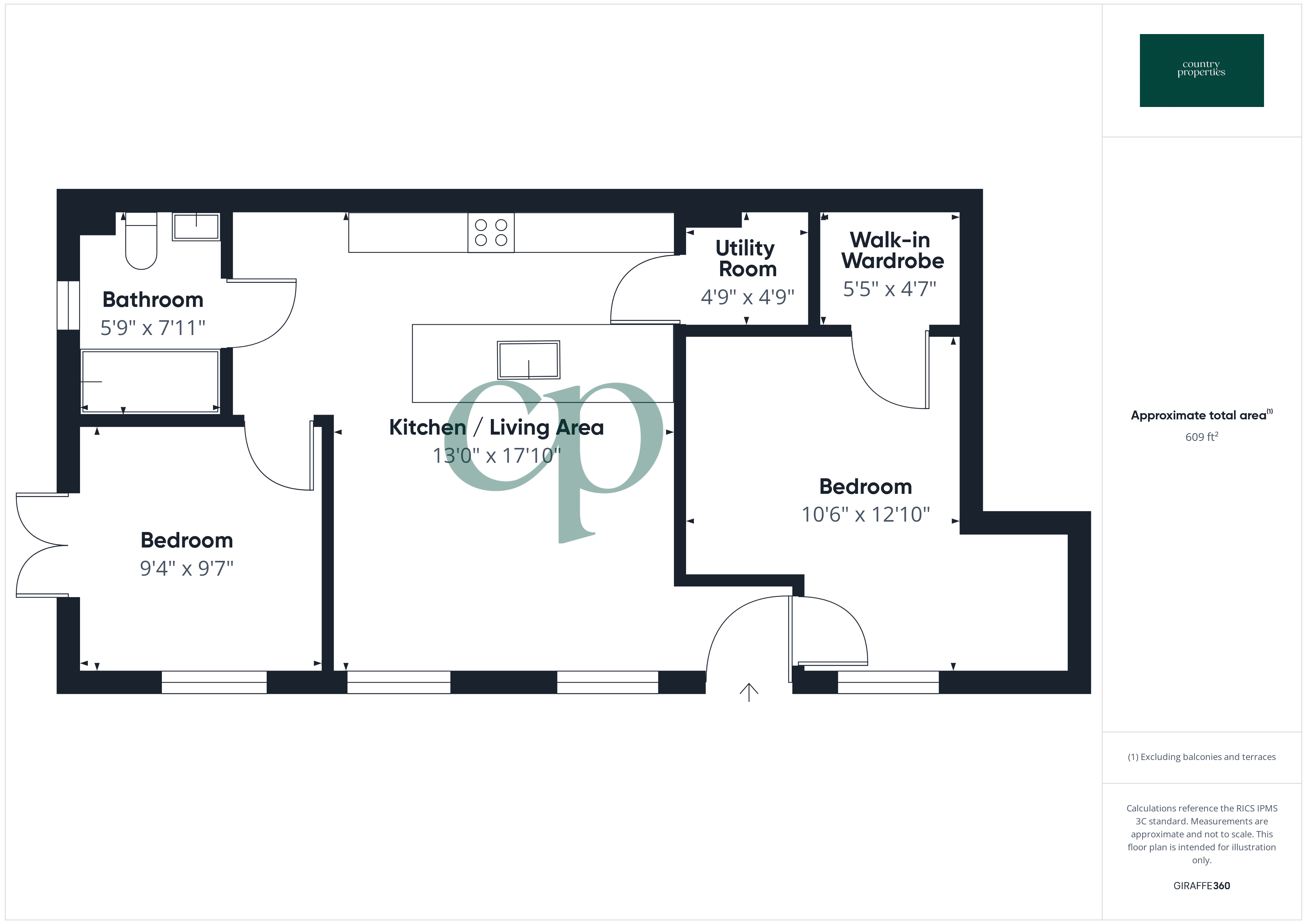
A rare opportunity to purchase this beautifully finished two double bedroom ground floor apartment, complete with a private enclosed garden and parking for residents and visitors. Built to a high specification with quality timber frame construction, this exclusive property is one of only two of its kind. Quietly tucked away on Shortmead Street, it’s only a short walk from Biggleswade town centre and the mainline train station, offering excellent links into London.

Upon entry, the spacious layout features a private entrance, open plan lounge, kitchen and dining area, utility room, master bedroom with master bedroom with walk-in wardrobe, a second double bedroom and a modern bathroom. Finished to an exceptional standard, the home includes underfloor heating, granite worktops and a state-of-the-art Apple-controlled smart system managing lighting, heating and music. Perfect for professionals, first-time buyers or downsizers seeking a stylish and convenient home in a desirable market town.

LOCATION

Biggleswade Town Centre is steeped with history, and is up & coming with all your amenities and a retail park. It also has great commuting links into London Kings Cross via train, good schooling and local cafes, restaurants and bars and has easy access directly onto the A1M and commutable links to the M1 and M11, and also within 15 miles of London Luton Airport.


Shortmead Street, Biggleswade, Bedfordshire

Mortgage calculator
years
%
Calculate Your Stamp Duty
£
Results
Stamp Duty To Pay:
Effective Rate:
Tax Band % Taxable Sum Tax
Enquire Now
Viewing Request Request Details Book a valuation

Share This Property

Country Properties Biggleswade

79 High St, Biggleswade, Beds, SG18 0LA