£450,000 Offers in excess of

2 bedroom Bungalow Sold STC

Wilstead, Bedfordshire
  • 2 Beds
  • 1 Baths
  • 3 Reception

Key Details

Material Information

Property Description

A delightful and spacious two bedroom detached bungalow, converted from a three bedroom, with the added advantage of a double garage and ample off-road parking. Being offered with no onward chain!

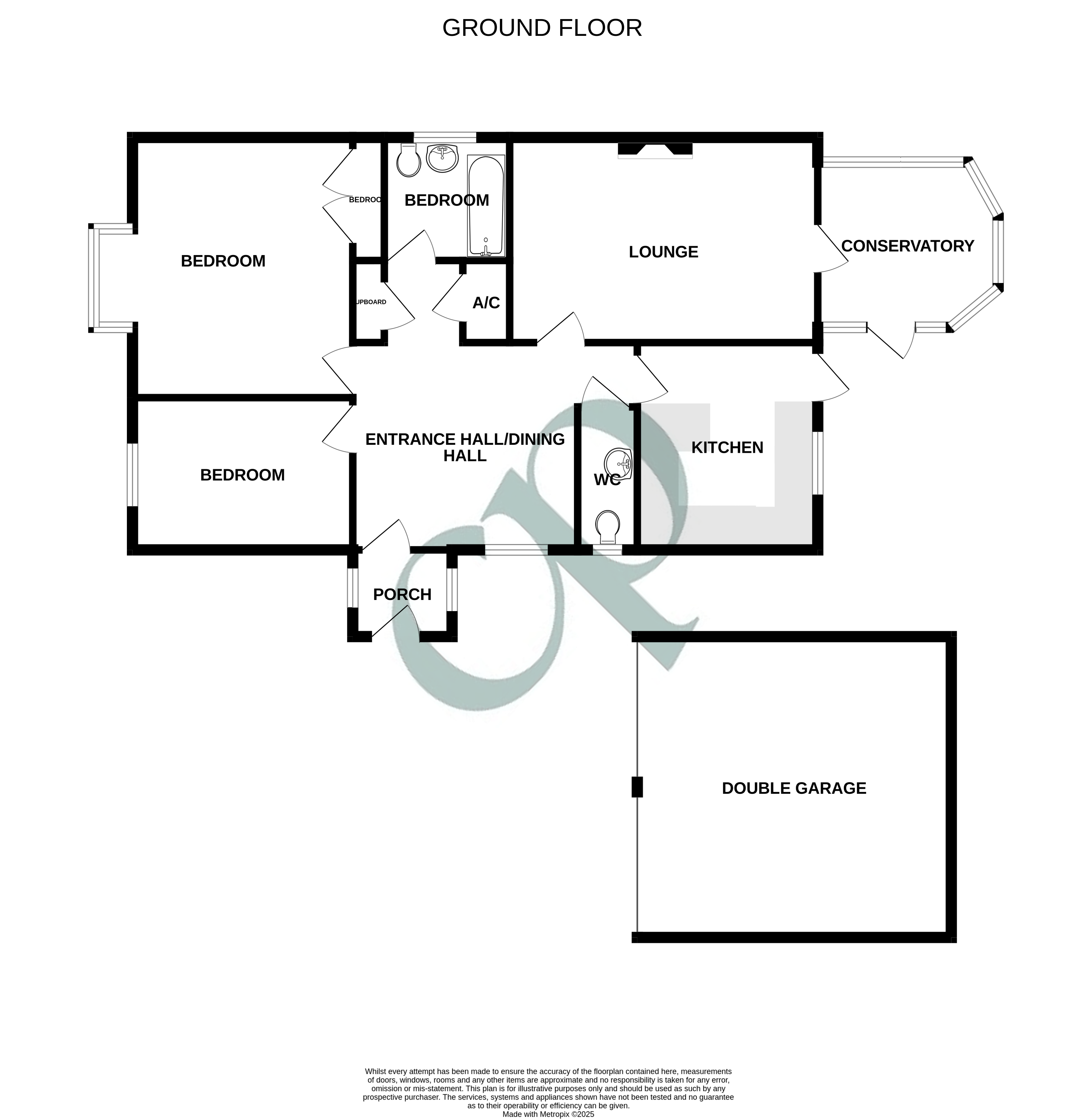
Accommodation

Entrance Porch

Entrance door, double glazed windows to the front and rear, double glazed door in to:

Dining Area

11' 11" x 11' 11" (3.63m x 3.63m) Double glazed window to the front, airing cupboard housing hot water tank plus additional storage cupboard, access to loft, radiator.

Lounge

15' 9" x 10' 9" (4.80m x 3.28m) Feature fireplace, radiator, double glazed patio doors into:

Conservatory

9' 0" x 8' 2" (2.74m x 2.49m) Double glazed and dwarf wall construction, door to the garden.

Kitchen

10' 8" x 9' 3" (3.25m x 2.82m) A range of base and wall mounted units with work surfaces over, 1.5 basin stainless steel sink and drainer, electric hob with oven under and extractor over, space for appliances, boiler, double glazed door and window to the rear, radiator.

Cloakroom

A suite comprising of a low level WC, wash hand basin, heated towel rail, double glazed window to the front.

Bedroom One

13' 6" x 11' 6" (4.11m x 3.51m) Built-in wardrobes, double glazed bay window to the front, radiator.

Bedroom Two

Built-in wardrobes, double glazed window to the front, radiator.

Shower Room

A suite comprising of a shower cubicle, low level WC, vanity unit wash hand basin, heated towel rail, double glazed window to the side.

Outside

Rear Garden

Shaped lawn with wooden decked seating area on a shingle base with pergola, further patio area, mature shrub and flower borders, outside power and tap, timber fencing.

Parking

Detached double garage with power and light plus blocked paved driveway with EV charging point.

NB

Please note that we have been advised by the current owners that this property has been previously underpinned, approximately 30 years ago.


Wilstead, Bedfordshire

Mortgage calculator
years
%
Calculate Your Stamp Duty
£
Results
Stamp Duty To Pay:
Effective Rate:
Tax Band % Taxable Sum Tax
Enquire Now
01525 403033 Viewing Request Request Details Book a valuation

Share This Property

Country Properties Ampthill

1 Church Street, Ampthill, Bedfordshire, MK45 2PJ