£1,350PCM

1 bedroom Flat Let Agreed

Pryor Wing, Fairfield, Bedfordshire
  • 1 Beds
  • 1 Baths
  • 1 Reception

Key Details

Material Information

Property Description

This stunning one bedroom apartment situated in the sought after Pryor Wing is offered in excellent condition and benefits from its own personal south facing balcony which is ideal for Alfresco evenings. Surrounded by acres of beautiful well maintained countryside walks and located within 'Fairfield' is a Tesco's convenience store, Bannatyne's Gym and Spa, along with Fairfield Park Cricket & Bowls Club.

GROUND FLOOR

Communal Entrance Hall

Multi pane sash windows to dual aspect. Stairs raising to first floor.

First Floor

Entrance Hall

Doors into Cloakroom and Sitting/Dining Room. Stairs raising to first floor. Under-stairs storage cupboard. Security intercom system. Wood effect flooring.

Cloakroom

LLWC. Pedestal wash hand basin. Tiled splashbacks.

Sitting /Dining Room

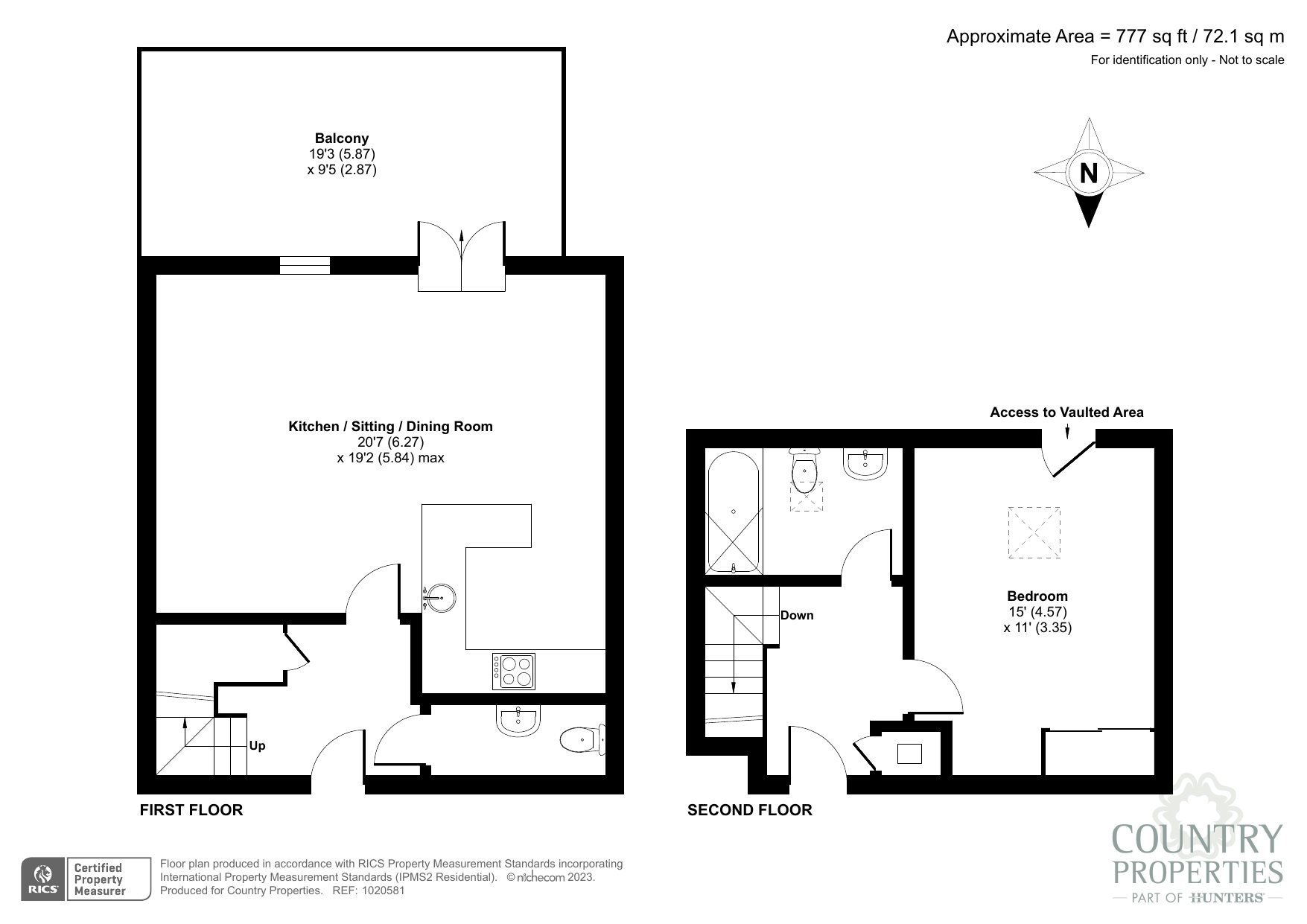
20' 7" x 19' 2" (6.27m x 5.84m) Double glazed window overlooking balcony. Double glazed double doors onto balcony. Wood effect flooring. Radiator.

Kitchen

9' 1" x 8' 7" (2.77m x 2.62m) A range of wall and base units with oak worksurfaces over. Tiles splashbacks. Inset stainless steel sink and drainer unit with swan neck mixer taps over. Built in electric oven and grill. Built in gas hob with stainless steel extractor hood over. Space and plumbing for washing machine. integrated fridge/freezer. Wood effect flooring. <br />

Mezzanine - 2nd Floor

Bedroom

15' 0" x 11' 0" (4.57m x 3.35m) Overlooking the Sitting/Dining Room. Radiator. Velux window.

Bathroom

8' 8" x 5' 9" (2.64m x 1.75m) Suite comprising panel enclosed bath with mains shower over and glass side screen. LLWC. Pedestal wash hand basin. Tiled splashbacks. Velux window.

Balcony

19' 3" x 9' 5" (5.87m x 2.87m) Accessed from the Sitting/Dining Room. Enclosed with fencing and wrought iron railings. Large decked patio.

Outside

Communal Grounds and allocated parking space

Outside, the apartment benefits from the extensive communal grounds and is a short walk from the Bannatyne Health Club and Spa and The Orchard Restaurant. The apartment comes with an allocated parking space and there is additional visitor parking available.<br /><br />

AGENT NOTE

Length of lease: 999 years from 1 January 2003<br /><br />The vendor informs us that the current Ground rent is £150 pa<br /> Annual service charge is TBC<br /><br />We advise any buyer to check this information with their legal representative prior to exchange of contracts.

Location

Fairfield Hall

Fairfield is situated on the edge of the Hertfordshire and Bedfordshire border, within 100's of acres of parkland. There is excellent access to the A1 and nearby train stations at Letchworth and Arlesey, providing trains to London Kings Cross in approximately 35 - 40 minutes. With an outstanding lower school, a Tesco convenience store, hairdressers, garden centre and Bannatyne's gym, spa and restaurant, Fairfield offers something for everyone. There is a thriving community within Fairfield with many local events and gatherings to enjoy.<br />


Pryor Wing, Fairfield, Bedfordshire

Enquire Now
01462 811822 Viewing Request Request Details Book a valuation

Share This Property

Country Properties Shefford

46-48 High Street, Shefford, Bedfordshire, SG17 5DG