£650,000

4 bedroom House For Sale

Oaktree Close, Letchworth Garden City, Hertfordshire
  • 4 Beds
  • 2 Baths
  • 2 Reception

Key Details

Material Information

Property Description

An impressive four bedroom detached family home located in a quiet cul-de-sac location.  The property is within easy walking distance of the town centre and main line train station.

On the ground floor there is a welcoming entrance hall, cloakroom, refitted kitchen/breakfast room, dining room, lounge and a double glazed conservatory.  On the first floor is the main bedroom with an en-suite shower, three further bedrooms and a modern family bathroom.  The property has a single garage and driveway for a couple of vehicles.  The rear garden has been landscaped and is screened by mature plants.

Internal viewing comes highly recommended to fully appreciate this family home.

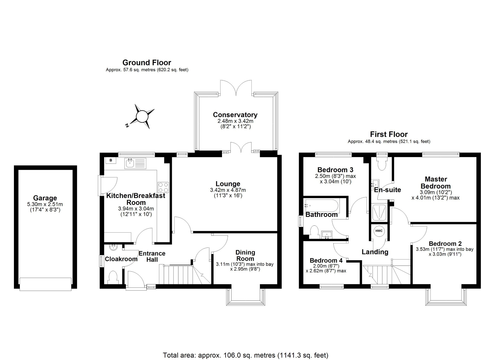
Ground Floor

Entrance Hall

Double glazed front door leading to the hallway. Stairs to first floor with large cupboard under. Radiator.

Cloakroom

Comprising low level wc and wash hand basin. Double glazed window to side. Radiator.

Lounge

16' 0" x 11' 3" (4.88m x 3.43m) <br />Double glazed doors leading to the conservatory. Wood laminate flooring. Tv point. Radiators.<br />

Conservatory

11' 2" x 8' 2" (3.40m x 2.49m) <br />Double glazed conservatory with windows and doors overlooking the rear garden.

Dining Room

10' 3" x 9' 8" (3.12m x 2.95m) <br />Double glazed bay window to front aspect. Wood laminate flooring. Radiator.

Kitchen/Breakfast Room

12' 11" x 10' 0" (3.94m x 3.05m) <br />Fitted in a range of matching base and eye level units providing ample storage space. Integrated double oven and hob with extractor over. Integrated fridge/freezer, washer dryer and slimline dishwasher. Concealed gas boiler. Display lighting. Single drainer sink unit with tap. Double glazed window to the rear and door to the garden. Space for a breakfast table. Radiator.

First Floor

Landing

Large double glazed picture window to front aspect. Access to loft space. Airing cupboard. Radiator.

Bedroom One

13' 2" x 10' 2" (4.01m x 3.10m) <br />Double glazed window to rear aspect. Radiator.

En-suite

Modern suite comprising a low level wc, vanity wash basin with cupboard under and a shower cubicle with glass door. Ceramic tiling. Heated chrome towel rail. Double glazed window to the rear aspect.

Bedroom Two

11' 7" x 9' 11" (3.53m x 3.02m) <br />Double glazed bay window to front aspect. Radiator.

Bedroom Three

10' 0" x 8' 3" (3.05m x 2.51m) <br />Double glazed window to rear aspect. Radiator.

Bedroom Four

8' 7" x 6' 7" (2.62m x 2.01m) <br />Double glazed window to front aspect. Radiator. Currently being used as a Home Office by the current owner.

Bathroom

A luxury modern suite comprising a low level wc, vanity wash basin with cupboards under and a panelled bath with shower and glass screen. Tiled walls and floor. Heated chrome towel rail. Double glazed window to the side aspect.

Outside

Front Garden

Laid to lawn with shrub borders enclosed by small hedging. Gated access to the rear garden. Off road parking for a couple of vehicles leading to the garage.

Rear Garden

Landscaped rear garden with a lawned area to the rear. Large patio area adjacent to the conservatory and extending to the side of the house making for a lovely private seating area. Between the house and the garage is a neat and tidy bin storage area.

Garage

17' 4" x 8' 3" (5.28m x 2.51m)<br />Detached garage with pitched roof and up and over door. The garage has power and light.


Oaktree Close, Letchworth Garden City, Hertfordshire

Mortgage calculator
years
%
Calculate Your Stamp Duty
£
Results
Stamp Duty To Pay:
Effective Rate:
Tax Band % Taxable Sum Tax
Enquire Now
01462 481100 Viewing Request Request Details Book a valuation

Share This Property

Country Properties Letchworth Garden City

7 Howard Park Corner, Letchworth Garden City, Hertfordshire, SG6 1PQ