£635,000 Offers in excess of

4 bedroom House For Sale

Hardy Way, Fairfield, Bedfordshire
  • 4 Beds
  • 2 Baths
  • 2 Reception

Key Details

Material Information

Property Description

Positioned on a peaceful corner plot within Fairfield Park, this 4 bedroom detached home boasts breath-taking views across green areas of the park and the historic Fairfield hall. The property has been sympathetically updated to a high standard with a newly fitted Kitchen and bathroom, offering modern family living inside and out.

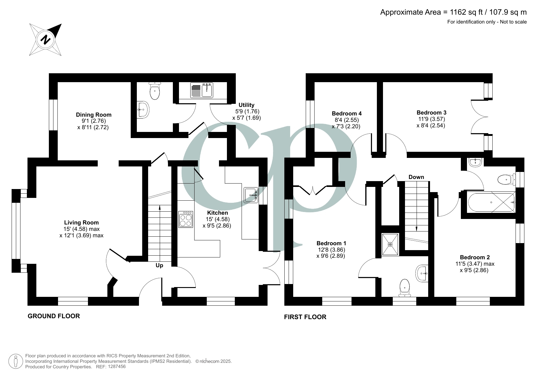
GROUND FLOOR

Entrance Hall

Wood effect flooring. Stairs rising to first floor. Doors onto Kitchen/Diner and Living Room. Radiator.

Living room

15' 0" (max) x 12' 1" (max) (4.58m max x 3.69m max) Dual aspect window to front and side with fitted shutters. Wood effect flooring. Radiator. Open archway onto Dining Room.

Dining Room

9' 1" x 8' 11" (2.76m x 2.72m) Window to side aspect with fitted shutters. Wood effect flooring. Radiator.

Hallway

Understairs storage cupboard. Door to Utility room and open archway onto Kitchen

Kitchen

15' 0" x 9' 5" (4.58m x 2.86m) Re-fitted in 2023 with a range of wall and base units with wood worksurfaces over. Ceramic butler style sink with vintage style mixer tap over. Integrated eye level double oven and grill. Induction hob with extractor fan over. Tiled splashbacks. Integrated fridge/freezer. Fitted wine cooler to remain. Breakfast bar. Radiator. Tiled flooring. Spotlights. Dual aspect windows to front and rear with fitted shutters. French doors onto rear garden.

Utility Room

5' 9" x 5' 7" (1.76m x 1.69m) A range of wall and base units with worksurfaces over. Inset stainless steel sink and drainer unit with swan neck mixer tap over. Tiled splashbacks. Cupboard housing a boiler. Space and plumbing for washing machine. Tiled flooring. Part glazed patio door onto rear garden. Radiator. Door to Cloakroom.

Cloakroom

Part tiled cloakroom with wash hand basin and low level WC. Wood effect vinyl flooring. Wall mounted cabinet. Radiator.

FIRST FLOOR

Landing

Doors to all bedrooms, family bathroom and door to storage cupboard. Radiator.

Bedroom One

12' 8" x 9' 6" (3.86m x 2.89m) Master bedroom with two windows to side aspect and third window to front aspect, all with fitted shutters. Two double built in wardrobes. Fitted carpet. Radiator. Door to En Suite.

En-suite

En suite comprising pedestal wash hand basin, low level WC and shower cubicle. Heated towel rail. Wall mounted bathroom cabinet. Wood effect vinyl flooring.

Bedroom Two

11' 5" (max) x 9' 5" (3.47m max x 2.86m) Juliette balcony to rear aspect. Fitted carpet. Radiator.

Bedroom Three

11' 9" x 8' 4" (3.57m x 2.54m) Dual aspect window to front and rear with fitted shutters. Fitted carpet. Radiator.

Bedroom Four

Window to front aspect with fitted shutters. Fitted carpet. Radiator.

Bathroom

Bathroom suite re-fitted in 2024, comprising vanity wash hand basin, low level WC and panel enclosed bath tub with shower over. Wall mounted bathroom cabinet. Heated towel rail. Fully tiled walls. Wood effect vinyl flooring. Window to rear aspect.

OUTSIDE

Front and Side Garden

Shingled front and side garden enclosed by iron railings and gate. Shrubs to side. External light. Meter cupboards. Paved path to front door.

Rear Garden

Rear garden mainly laid to lawn. Paved patio area. Paved path and steps down to gated rear access. Flowers and shrubs borders. Security lights.

Garage and parking

Single garage with up and over door. Power and light. EV charger. Off road parking space for one car in front of the garage.

Agents Note:

The seller informs us that the annual service charge is £282.86 per anum which is paid in 2x instalments of £141.43 every 6 months.


Hardy Way, Fairfield, Bedfordshire

Mortgage calculator
years
%
Calculate Your Stamp Duty
£
Results
Stamp Duty To Pay:
Effective Rate:
Tax Band % Taxable Sum Tax
Enquire Now
01462 834022 Viewing Request Request Details Book a valuation

Share This Property

Country Properties Stotfold

1 Arlesey Road, Stotfold, Bedfordshire, SG5 4HA