£420,000

3 bedroom House For Sale

Middlemarch, Fairfield, Bedfordshire
  • 3 Beds
  • 1 Baths
  • 1 Reception

Key Details

Material Information

Property Description

This immaculately presented mews cottage style terraced house situated in Fairfield surrounded by acres of fields offers a spacious open-plan living, dining, and kitchen area, three well-proportioned bedrooms and additionally benefits two allocated off-road parking spaces and private rear garden with views of the Middlemarch fountain.

INTERNAL

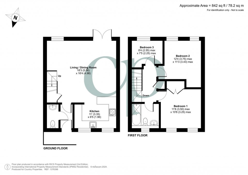
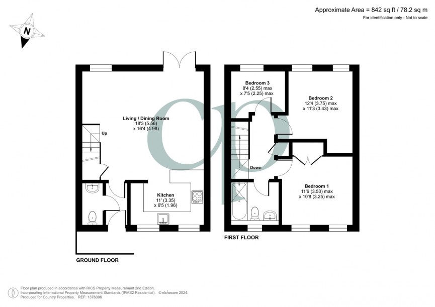
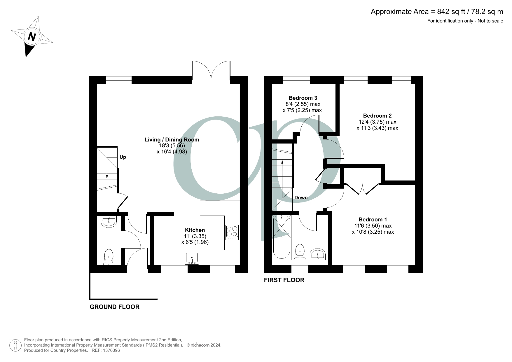
Gound Floor

Entrance Hall

Wood effect Karndean flooring. Doors to Living/ Dining Room and Cloakroom. Radiator.

Kitchen

11' 0" x 6' 5" (3.35m x 1.96m) Open plan to Living / Dining Room. A range of wall and base units with worksurfaces over. Inset one and half bowl stainless steel sink unit with mixer tap over. Integrated Bosch electric oven and induction hob with extractor fan over. Integrated fridge/freezer, Bosch dishwasher and washing machine. Wall mounted combination boiler housed in a kitchen cupboard. Tiled flooring. Two windows to front aspect.

Living / Dining Room

18' 3" x 16' 4" (5.56m x 4.98m) Spacious Living / Dining Room open plan to Kitchen. Two windows to rear aspect. Wood effect Karndean flooring. French patio door onto rear garden. Carpeted stairs rising to first floor with understairs storage cupboard. Two radiators.

Cloakroom

Pedestal wash hand basin and low level WC. Wood effect Karndean flooring. Radiator. Extractor fan. Fuse box.

FIRST FLOOR

Landing

Doors to all bedrooms and bathroom. Storage/Airing cupboard. Loft hatch to insulated and partially boarded loft with light.

Bedroom One

11' 6" (max) x 10' 8" (max) (3.50m max x 3.25m max) Two windows to front aspect. Fitted carpet. Double built in wardrobe. Radiator.

Bedroom Two

12' 4" (max) x 11' 3" (max) (3.75m max x 3.43m max) Two windows to rear aspect. Fitted carpet. Radiator.

Bedroom Three

8' 4" x 7' 5" (2.54m x 2.26m) Window to rear aspect. Fitted carpet. Radiator.

Bathroom

Fully tiled bathroom suite comprising vanity wash hand basin, low level WC and panel enclosed bath tub with shower over. Heated towel rail. Extractor fan. Shaver point. Obscure window to front aspect.

OUTSIDE

Front of the property

Beautifully maintained communal front gardens. Paved path to porch entrance. Enclosed by wrought iron gate and railings. External wall lantern light.

Rear Garden

Paved patio. Garden Shed. Variety of shrubs. Railings gate.

Parking

Allocated off road parking space for two cars.

Local Area

Fairfield is situated on the edge of the Hertfordshire and Bedfordshire border, within 100's of acres of stunning parkland. There is excellent access to the A1 and nearby train stations at Letchworth and Arlesey, providing trains to Kings Cross / St Pancras in less than 40 minutes. With a well regarded lower school, a Tesco convenience store, hairdressers, community hall, garden centre, number of playgrounds, many beautiful countryside walks, nearby lagoons, Bannatyne's gym, Cricket and Bowls Club, Fairfield offers something for everyone. There is a thriving community within Fairfield with many local events and gatherings to enjoy.

Agents Note

The vendor informs us that the current maintenance/service charge is £744 pa <br /><br />We advise any buyer to check this information with their legal representative prior to exchange of contracts.


Middlemarch, Fairfield, Bedfordshire

Mortgage calculator
years
%
Calculate Your Stamp Duty
£
Results
Stamp Duty To Pay:
Effective Rate:
Tax Band % Taxable Sum Tax
Enquire Now
01462 834022 Viewing Request Request Details Book a valuation

Share This Property

Country Properties Stotfold

1 Arlesey Road, Stotfold, Bedfordshire, SG5 4HA