£325,000

3 bedroom House Sold STC

Kimberwell Close, Toddington, Bedfordshire
  • 3 Beds
  • 1 Baths
  • 2 Reception

Key Details

Material Information

Property Description

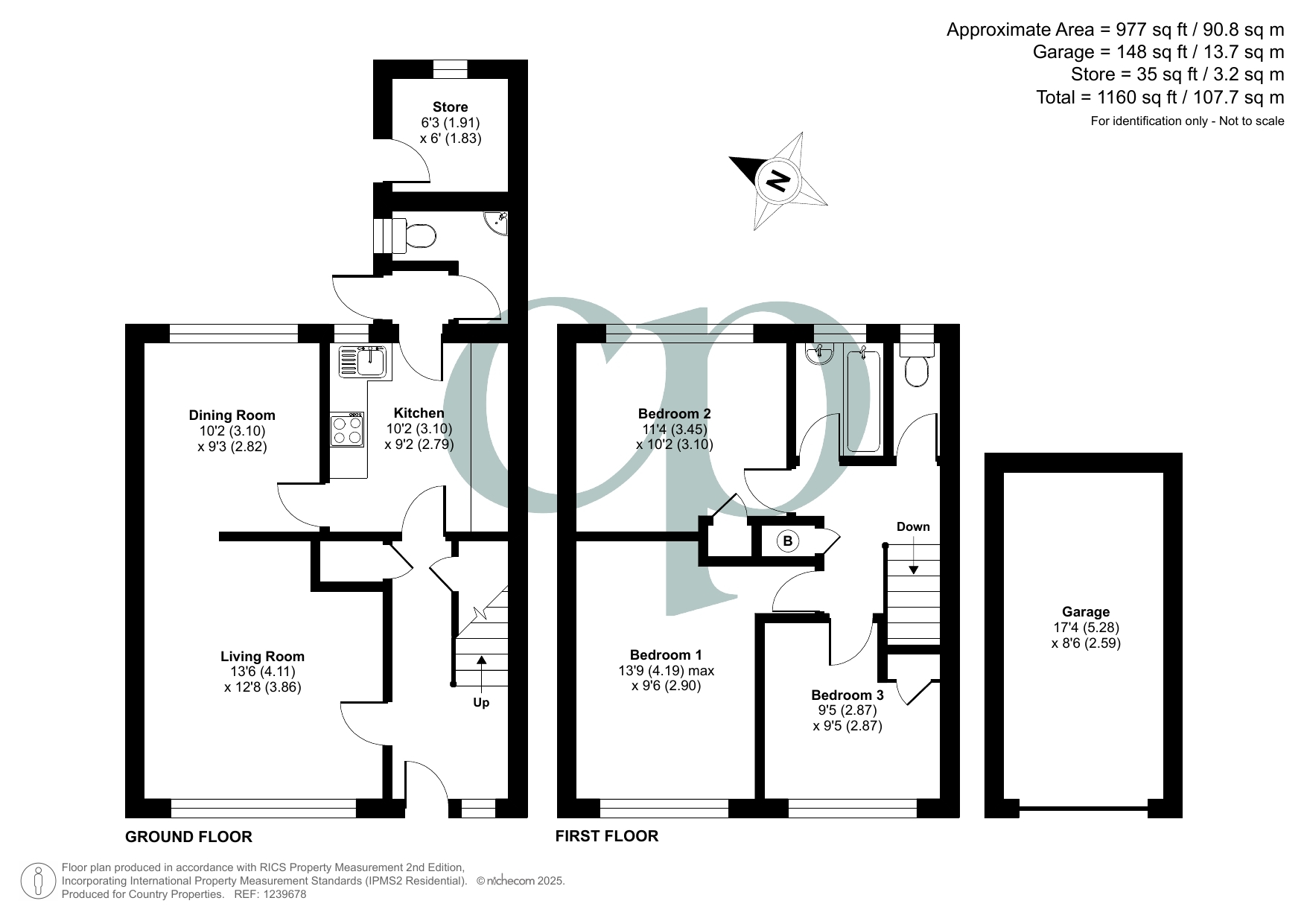
Offered for sale with no upper chain, this mid terrace home offers well proportioned accommodation including a living room with open access to dining room, fitted kitchen and cloakroom/WC. There are three bedrooms the first floor, along with a bathroom and separate WC. There is a good sized garden and parking is provided via the garage and driveway immediately to the rear. Commuter links are available via the A5-M1 link road (1.7 miles), M1:J12 (2.1 miles) and Harlington mainline rail station (2.8 miles). EPC Rating: C.

GROUND FLOOR

ENTRANCE HALL

Accessed via front entrance door with opaque double glazed panels. Opaque double glazed window to front aspect. Stairs to first floor landing with built-in storage cupboard beneath. Additional built-in cupboard. Radiator. Doors to kitchen and to:

LIVING ROOM

Double glazed window to front aspect. Radiator. Open access to:

DINING ROOM

Double glazed window to rear aspect. Radiator. Engineered wood flooring. Door to:

KITCHEN

Double glazed window to rear aspect. A range of base and wall mounted units with work surface areas incorporating sink and drainer. Space for washing machine, dishwasher, fridge/freezer and cooker (with extractor above). Wall and floor tiling. Part gazed door to:

REAR LOBBY

Part opaque double glazed door to side aspect leading to garden. Door to:

CLOAKROOM/WC

Opaque double glazed window to side aspect. Two piece suite comprising: Low level WC and corner wash hand basin. Wall mounted electric heater.

FIRST FLOOR

LANDING

Built-in airing cupboard housing water tank. Doors to all bedrooms, bathroom and separate WC.

BEDROOM 1

Double glazed window to front aspect. Radiator.

BEDROOM 2

Double glazed window to rear aspect. Radiator. Built-in storage cupboard.

BEDROOM 3

Double glazed window to front aspect. Radiator. Wood effect flooring. Built-in over stairs storage cupboard. Hatch to loft.

FAMILY BATHROOM

Opaque double glazed window to rear aspect. Two piece suite comprising: Bath with wall mounted shower unit over, and wash hand basin. Wall tiling. Radiator.

SEPARATE WC

Opaque double glazed window to rear aspect. Low level WC.

OUTSIDE

FRONT GARDEN

Pathway leading to front entrance door. Mainly laid to lawn.

REAR GARDEN

Immediately to the rear of the property is a patio seating area, with pathway extending alongside the lawned garden to a further patio area at the rear. Various shrubs. Brick-built store with double glazed window to rear aspect, power and light. Timber garden shed. Outside light. Enclosed by fencing with gated rear access.

GARAGE

Situated immediately to the rear of the property. Metal up and over door. Power and light.

OFF ROAD PARKING

Hard-standing providing off road parking for one vehicle in front of garage.<br /><br />Current Council Tax Band: C.


Kimberwell Close, Toddington, Bedfordshire

Mortgage calculator
years
%
Calculate Your Stamp Duty
£
Results
Stamp Duty To Pay:
Effective Rate:
Tax Band % Taxable Sum Tax
Enquire Now
01525 721000 Viewing Request Request Details Book a valuation

Share This Property

Country Properties Flitwick

3 The Russell Centre, Coniston Road, Flitwick, Beds, MK45 1QY.