£375,000

3 bedroom House Sold STC

Beaumont Road, Flitwick, Bedfordshire
  • 3 Beds
  • 2 Baths
  • 1 Reception

Key Details

Material Information

Property Description

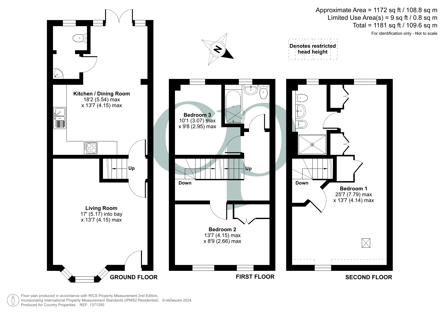
With no upper chain, this three-storey townhouse is ready for you to move in and make it your own. Set within a popular location just 0.4 miles from the town centre amenities, the property also boasts off road parking and an enclosed rear garden with south-westerly aspect. Step inside to discover a bright and airy bay-fronted living room, perfect for relaxing or entertaining guests. The ground floor also benefits from a handy cloakroom/WC, adding to the practical layout of the home, whilst the heart of the property is undoubtedly the fitted kitchen/dining room which features French doors to rear and a part vaulted ceiling with skylights that flood the space with natural light. Upstairs, the first floor comprises two bedrooms and a family bathroom, whilst on the second floor you’ll find a spacious principal bedroom suite complete with a private shower room, creating a relaxing retreat at the end of the day. EPC: C.

GROUND FLOOR

ENTRANCE

Via front entrance door with opaque glazed inserts to:

LIVING ROOM

Walk-in bay with double glazed windows to front aspect. Two radiators. Wood effect flooring. Door to:

INNER LOBBY

Radiator. Wood effect flooring. Stairs to first floor landing. Door to:

KITCHEN/DINING ROOM

Double glazed French doors to rear aspect with matching windows to either side. Part vaulted ceiling with two skylights. A range of base and wall mounted units with work surface areas incorporating 1½ bowl sink and drainer with mixer tap. Tiled splashbacks. Built-in electric oven and gas hob with extractor over. Space for washing machine and fridge/freezer. Two radiators. Recessed spotlighting to ceiling. Wood effect flooring. Door to:

CLOAKROOM/WC

Opaque double glazed window to rear aspect. Two piece suite comprising: Close coupled WC and wall mounted wash hand basin with mixer tap and tiled splashback. Radiator. Wood effect flooring. Hatch to roof void.

FIRST FLOOR

FIRST FLOOR LANDING

Radiator. Stairs to second floor landing. Doors to two bedrooms and family bathroom.

BEDROOM 2

Two double glazed windows to front aspect. Fitted wardrobe. Radiator.

BEDROOM 3

Double glazed window to rear aspect. Radiator.

FAMILY BATHROOM

Opaque double glazed window to rear aspect. Three piece suite comprising: Bath with mixer tap and shower over, close coupled WC and pedestal wash hand basin with mixer tap. Part tiled walls. Radiator. Wood effect flooring.

SECOND FLOOR

SECOND FLOOR LANDING

Door to:

BEDROOM 1

Double glazed windows to front and rear aspects. Skylight. Two built-in wardrobes. Cupboard housing gas fired boiler. Two radiators. Door to:

EN-SUITE SHOWER ROOM

Opaque double glazed window to rear aspect. Four piece suite comprising: Shower cubicle with wall mounted shower unit, close coupled WC, bidet and pedestal wash hand basin with mixer tap. Part tiled walls. Radiator. Recessed spotlighting to ceiling. Wood effect flooring.

OUTSIDE

REAR GARDEN

Paved patio area leading to lawn. Two garden sheds. Enclosed by timber fencing with gated side access.

OFF ROAD PARKING

Off road parking to front of property.<br /><br />Current Council Tax Band: D.


Beaumont Road, Flitwick, Bedfordshire

Mortgage calculator
years
%
Calculate Your Stamp Duty
£
Results
Stamp Duty To Pay:
Effective Rate:
Tax Band % Taxable Sum Tax
Enquire Now
01525 721000 Viewing Request Request Details Book a valuation

Share This Property

Country Properties Flitwick

3 The Russell Centre, Coniston Road, Flitwick, Beds, MK45 1QY.