£450,000 Guide Price

2 bedroom House For Sale

Radcliffe Road, Hitchin, Hertfordshire
  • 2 Beds
  • 2 Baths
  • 1 Reception

Key Details

Material Information

Property Description

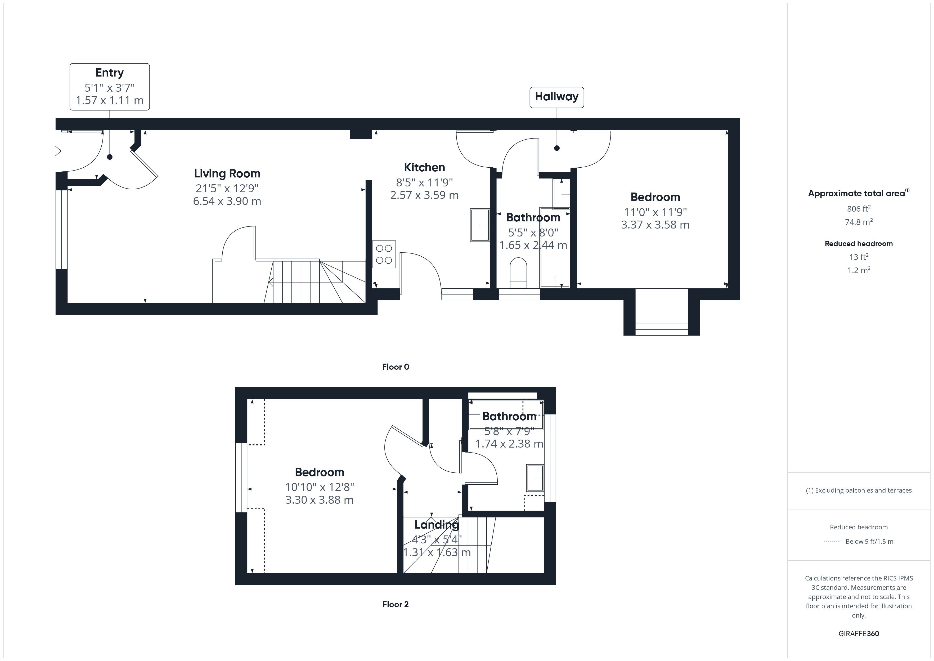
Elegant Two Bedroom Mews Home in a Coveted Location

Tucked away in an exclusive setting, this property offers a rare opportunity to own a beautifully presented two bedroom mews house that blends contemporary comfort with timeless charm.

Step inside to a light filled open plan living and dining area, designed for both stylish entertaining and relaxed everyday living. The separate, fully fitted kitchen provides a sleek and practical space for culinary creativity.

The home’s thoughtful layout includes a ground floor bedroom and bathroom, ideal for guests or versatile living, while the first floor hosts a generous principal bedroom with its own private bathroom.

Beyond the interiors, residents enjoy access to a landscaped communal garden, offering a tranquil escape in the heart of the community.

This exceptional property combines sophistication, convenience, and a highly desirable address, perfect for discerning buyers seeking a home of quality and character.

We have been informed by the vendor that the remaining lease on the property is 108 years. With a Ground Rent of approx. £150 per annum doubling on each 25th anniversary for the first 100 years of the term and a Service Charge of approx. £2,000 per annum.

Hitchin is a charming medieval market town and has many fine Tudor and Georgian buildings, particularly around the market square. Near to the market square stands the large medieval parish church of St Mary. The town provides good shopping as well as a swimming pool, football team, two theatres, a wide variety of restaurants and pubs and highly regarded girls and boys schools. There is also a mainline railway station providing direct access to Kings Cross and Cambridge.


Radcliffe Road, Hitchin, Hertfordshire

Mortgage calculator
years
%
Calculate Your Stamp Duty
£
Results
Stamp Duty To Pay:
Effective Rate:
Tax Band % Taxable Sum Tax
Enquire Now
01462 452951 Viewing Request Request Details Book a valuation

Share This Property

Country Properties Hitchin

6 Brand Street, Hitchin, SG5 1HX