£375,000 Guide Price

2 bedroom House Sold STC

Lincoln Close, Welwyn Garden City, Hertfordshire
  • 2 Beds
  • 1 Baths
  • 1 Reception

Key Details

Material Information

Property Description

Situated in a quiet cul-de-sac close to local schools and shops, this well-presented two double bedroom terraced home offers comfortable and modern living throughout. The property features a spacious lounge/diner, a stylish modern kitchen, and a contemporary bathroom complete with underfloor heating. Outside, there is ample parking and a private rear garden with a patio and canopy, perfect for outdoor entertaining. An ideal home for first-time buyers or those looking to downsize in a convenient and peaceful location.

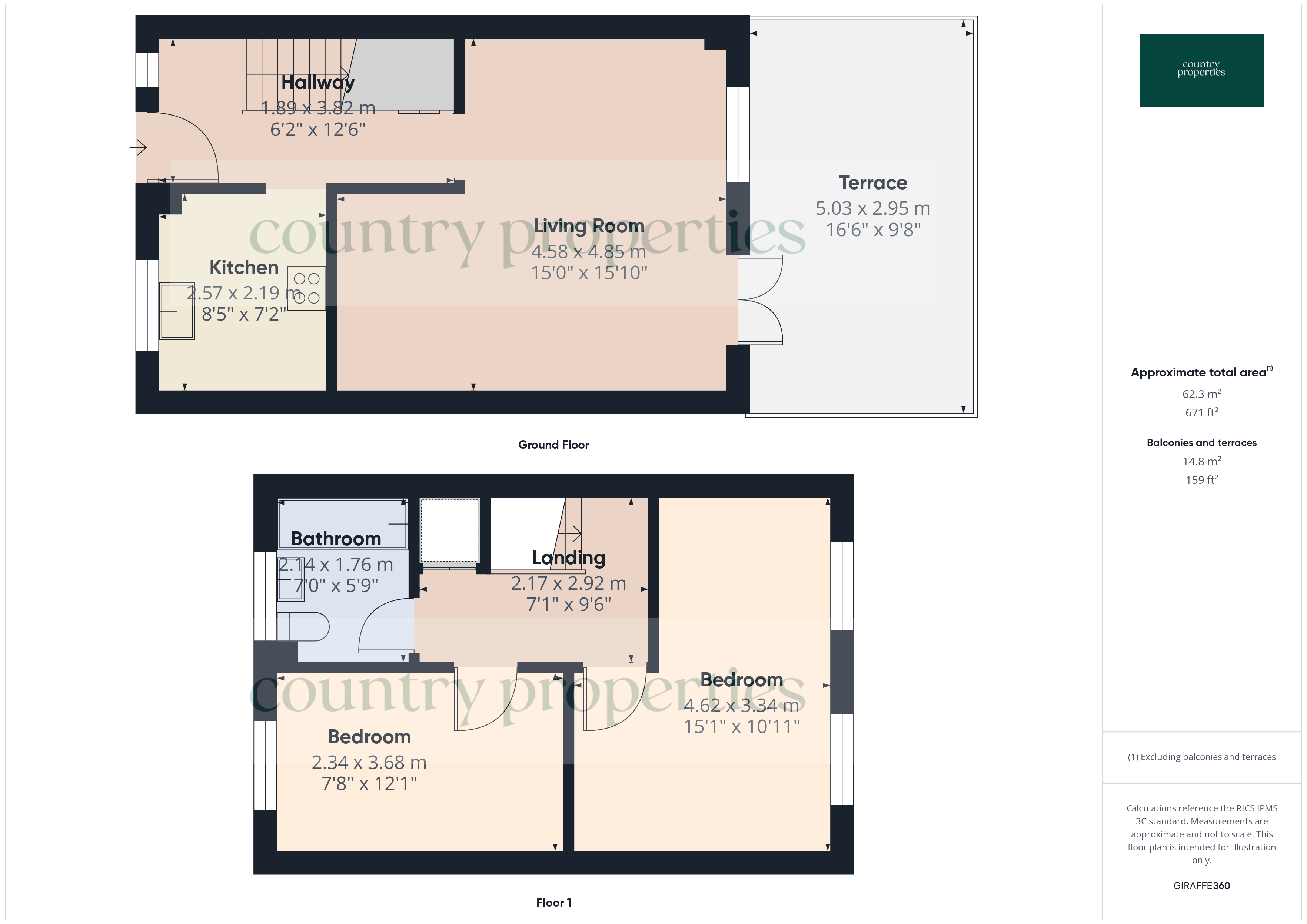
Ground Floor

Hallway

Light grey laminate flooring greets you in this wide entrance hall, wooden stairs leading to 1st floor, radiator, double glazed UPVC window overlooking the front garden, phone line, broadband, opening leading to kitchen, under stair storage, an open area leading to living dining room, thermostatically controlled radiator, thermostat control mounted on wall.

Living/Dining Area

Light grey laminate wood flooring continues double glazed UPVC window overlooking rear garden, plug sockets, thermostatically controlled radiator, spotlights, TV aerial port, French doors leading to rear garden. Dining area consists of a space for large dining table, plug sockets and thermostatically controlled radiator.

Kitchen

This modern kitchen comprises of many wall and floor cream storage cupboards, solid wood work top. Double glazed UPVC window overlooking front garden, large grey tile flooring, thermostatically controlled radiator, wall mounted Worcester boiler. This kitchen also comprises of many integrated appliances with fridge, which contains small freezer compartment, Neff cooker meth induction hub, candy slimline dishwasher, washing machine, large black sink basin with Chrome mixer taps, white tiling on wall.

First Floor

Landing

Light grey laminate flooring, loft access, doors leading to master bedroom, second bedroom and bathroom, storage cupboard over the stairs.

Master Bedroom

Laminate flooring, two thermostatically controlled radiators, dual aspect double glazed UPVC windows overlooking rear garden, spotlights and a USB socket to the side of the bed.

Bedroom 2

Light grey laminate flooring, thermostatically controlled radiator, double glazed UPVC windows overlooking the front, spotlights, plug sockets.

Bathroom

Light grey laminate flooring. Three piece bathroom suite comprising of a low level WC and dual flush. Ceramic round sink basin with chrome mixer tap. Panel bath with Mira power shower over and glass shower screen. Grey wall tiles. Obscured double glazed uPVC windows overlooking the front. Heated towel rail. Extractor fan. Spotlights. Under floor heating with under floor heating control on the wall.

Exterior

Front Garden

Mainly laid to lawn with hedges either side and block paving up to front door, outdoor storage for bins and outdoor storage cupboard, outdoor power UPVC door leading to entrance hall, ample parking.

Rear Garden

Decking area big enough for dining and entertaining with wooden canopy over and spotlight lighting, mainly laid to lawn area with shrubs and beds either side at the back of the garden, there is a small patio area with shed and back gate access that leads to a back alley from the main road.

Buyer's Information

In accordance with UK Anti-Money Laundering (AML) regulations, we are required to verify the identity of all prospective buyers once an offer has been accepted. This process is completed through a trusted third-party identity verification system, for which there is a nominal fee of £35 + VAT per person.


Lincoln Close, Welwyn Garden City, Hertfordshire

Mortgage calculator
years
%
Calculate Your Stamp Duty
£
Results
Stamp Duty To Pay:
Effective Rate:
Tax Band % Taxable Sum Tax
Enquire Now
01707 339146 Viewing Request Request Details Book a valuation

Share This Property

Country Properties Welwyn Garden City

3 Bridge Road, Welwyn Garden City, Hertfordshire, AL8 6N