£2,000PCM

3 bedroom Bungalow For Rent

Shefford Road, Meppershall, Bedfordshire
  • 3 Beds
  • 1 Baths
  • 1 Reception

Key Details

Material Information

Property Description

Accessed via a private lane this three bedroom detached bungalow  offers fabulous far reaching countryside views. 

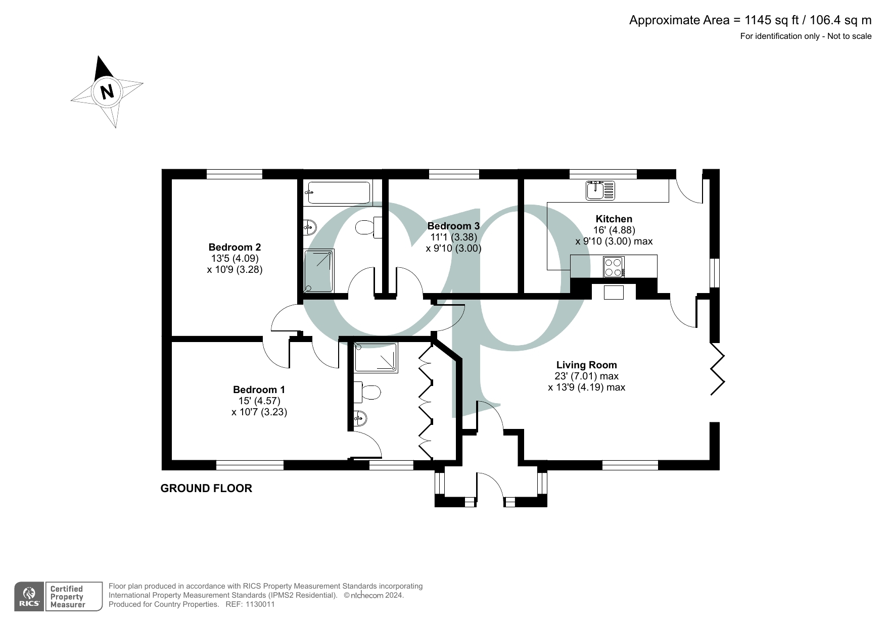
Ground Floor

Entrance Porch

Two double glazed windows to side. Ceramic tiled flooring. Radiator. Door into:

Living Room

23' 0" (max) x 13' 9" (max) (7.01m x 4.19m) Dual aspect room with double glazed window to front and oak bi-folding doors to side. Inset wood burning stove with feature wooden mantle and tiled hearth. Radiator. Solid oak flooring. Doors into inner hall and kitchen.

Kitchen

16' 0" x 9' 10" (max) (4.88m x 3.00m) A range of wall and base level units with complementary worksurfaces and upstands. Inset stainless steel double sink with drainer and mixer tap over. Range cooker with glass splashback and stainless steel extractor hood over. Integrated dishwasher and washing machine. Space and plumbing for American style fridge/freezer. Ceramic tiled flooring. Double glazed window and door to rear garden.

Inner Hall

Doors into all bedrooms and bathroom.

Bedroom 1

15' 0" x 10' 7" (4.57m x 3.23m) Double glazed windows to front and side. Oak flooring. Radiator. Door into:

En-Suite Shower Room

Three piece suite comprising low level wc , wash hand basin and shower cubicle. A range of fitted wardrobes. Partially tiled walls and oak flooring. Obscure double glazed window to front.

Bedroom 2

13' 5" x 10' 9" (4.09m x 3.28m) Double glazed window to rear. Oak flooring. Radiator.

Bedroom 3

11' 1" x 9' 10" (3.38m x 3.00m) Double glazed window to rear. Radiator.

Bathroom

Four piece suite comprising panel enclosed bath with shower attachment double shower cubicle with rainfall shower, pedestal wash hand basin and low level wc. Tiled walls and wood effect flooring. Obscure double glazed window to front.

OUTSIDE

Front Garden

Laid to lawn with block paved driveway providing off road parking for several cars. Shingled borders with mature shrubs. Access to the rear garden.

Rear Garden

*Large garden laid mainly to lawn with mature planted areas. Garden shed with power connected - to remain. Enclosed with mature hedging and wood panel fencing with access to the front.<br />

AGENTS NOTE:

Council Tax Band D = £2,319.55<br />Deposit £2,307.69<br /> Holding Deposit £461.00<br /> EPC Band C<br />Broad Band Standard 8MBPS Ultrafast 220 MBPS<br />Mobile coverage EE Limited O2<br /><br />


Shefford Road, Meppershall, Bedfordshire

Enquire Now
01462 811822 Viewing Request Request Details Book a valuation

Share This Property

Country Properties Shefford

46-48 High Street, Shefford, Bedfordshire, SG17 5DG