£1,100PCM

2 bedroom House For Rent

Bunyan Road, Biggleswade, Bedfordshire
  • 2 Beds
  • 1 Baths
  • 1 Reception

Key Details

Material Information

Property Description

Situated within easy access of the Town Centre and Train Station, this two bedroom cluster style home comprising of entrance hall, lounge, kitchen, two bedrooms, bathroom, enclosed rear garden & allocated parking. Available mid February. EPC Rating D. Council Tax Band B. Holding fee £253.85. Deposit £1,269.23.

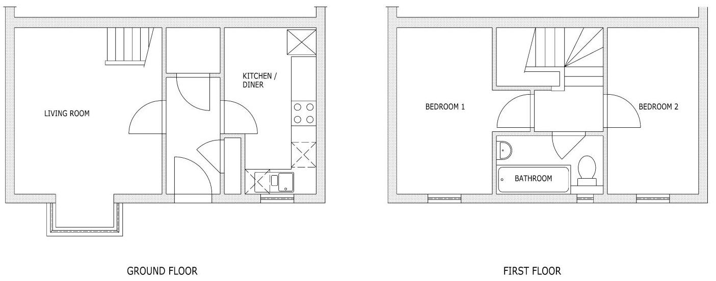
Ground Floor

Front Door Into:-

Entrance Hall

Storage cupboard housing boiler and storage over. Under stairs storage cupboard. Radiator. Door to:-

Lounge

14' 3" into bay x 12' 6" (4.34m x 3.81m) <br />Upvc double glazed bay window to front. TV point. Telephone point. Double radiator. Stairs to first floor accommodation.

Kitchen

11' 8" x 7' 5" (3.56m x 2.26m) <br />Range of wall and base units with work surfaces over. 1½ bowl sink unit with single drainer and mixer tap. Washing machine, cooker and fridge/freezer. Radiator. Fluorescent light. Upvc double glazed window to front.

First Floor

Landing

Doors to:-

Bedroom One

11' 8" x 8' 5" (3.56m x 2.57m) <br />Radiator. Upvc double glazed window to front.

Bedroom Two

11' 9" x 7' (3.58m x 2.13m) <br />Radiator. Upvc double glazed window to front.

Bathroom

7' 10" x 4' 8" (2.39m x 1.42m) <br />Panelled bath with shower over. Low level WC. Pedestal wash hand basin. Radiator. Light with shaver socket. Frosted Upvc double glazed window to front.

Outside

Parking

1 allocated parking space.

Enclosed Garden

Enclosed garden to front and side. Shrubs and flower borders. Shingled area. Outside storage cupboard.

Agency Fees

Permitted Tenant payments are:-<br />Holding deposit per tenancy – One week’s rent<br />Security deposit per tenancy – Five week’s rent<br />Unpaid rent – charged at 3% above Bank of England base rate from rent due date until paid in order to pursue non-payment of rent. Not to be levied until the rent is more than 14 days in arrears.<br />Lost keys or other security devices – tenants are liable to the actual cost of replacing any lost keys or other security devices. If the loss results in locks needing to be changed, the actual cost of a locksmith, new locks and replacement keys for the tenants, the landlord and any other persons requiring keys will be charged to the tenant. If extra costs are incurred there will be a charge of £15.00 per hour (inc. VAT) for the time taken replacing lost keys or other security devices/<br />Variation of contract at the tenant’s request - £50.00 (inc. VAT) per agreed variation.<br />Change of sharer at the tenant’s request - £50.00 (inc. VAT) per replacement tenant or any reasonable costs incurred if higher.<br />Early termination of tenancy at tenant’s request – Should the tenant wish to terminated their contract early, they shall be liable to the landlord’s costs in re-letting the property as well as all rent due under the tenancy until the start of date of the replacement tenancy. These costs will be no more than the maximum amount of rent outstanding on the tenancy.<br />Redman Stewart ltd T/A Country Properties are members of The Property Ombudsman (TPO) Redress Scheme. Membership number D00609.<br />Redman Stewart Ltd T/A Country Properties are part of a Client Money Protection Scheme with Propertymark. Membership number C0016528.<br />


Bunyan Road, Biggleswade, Bedfordshire

Enquire Now
Viewing Request Request Details Book a valuation

Share This Property

Country Properties Biggleswade

79 High St, Biggleswade, Beds, SG18 0LA